Capannone in Vendita a Cernusco sul Naviglio, 1250 m²

Locali: 4
Bagni: 3
Piano: Terra
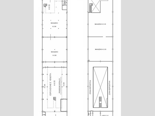
Nel contesto del Centro Tessile Milano, con un ampio parcheggio, un collegamento veloce con il centro di Milano, con gli aeroporti e con le grandi arterie stradali, proponiamo ampio capannone con un magazzino di 1.000 mq di cui 500 mq circa al piano terra con altezza 2,90 mt con servizi e 500 mq circa al primo piano con servizi e uffici. Inoltre, dispone di ulteriori 250 mq circa al piano terra di un'area espositiva show room altezza 6,55 mt. L'ingresso principale su strada è facilmente accessibile e con zona carico/scarico sul retro. Soluzione molto luminosa e con impianti caldo/freddo. Libero a rogito Ape G

Condizioni economiche

Contratto: Vendita
Prezzo: Prezzo su richiesta

Informazioni principali

Tipologia: Capannone
Città: Cernusco sul Naviglio
Superficie: 1250 m²
N° locali: 4
N° bagni: 3
Piano: Terra

Efficenza energetica

Classe energetica:
Anno di costruzione: 0

Dati inserzione

ID Offrocasa.com: 10658097
Data inserimento: 05/02/2025
Rif. Agenzia: Cod. rif 3210293VCG
Rif. Agenzia Cod. rif 3210293VCG

Gabetti

via Gramsci 46 - Settimo Milanese (Milano)
02/33512357
Richiedi Info dal form:
Accetto l'Informativa Privacy


Gabetti

via Gramsci 46 - Settimo Milanese (Milano)

Capannone in Vendita a Cernusco sul Naviglio, 1250 m²

Chiama
Contatta