Attico in Vendita a Roma, 820'000€, 140 m²

Locali: 5
Bagni: 2
Piano: 5°
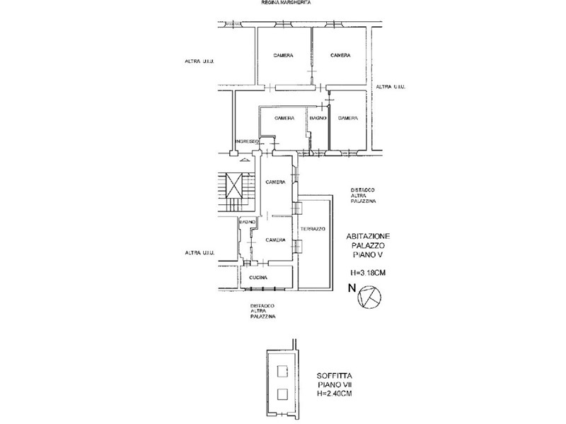
In una delle zone più prestigiose di Roma, precisamente in Viale Regina Margherita, proponiamo in vendita un luminoso attico. L'appartamento, posto al quinto piano di uno stabile recentemente ristrutturato, si estende su una superficie di circa 140 mq, offrendo spazi luminosi e ben distribuiti. L'immobile si presenta così composto: ampio ingresso, sala da pranzo aperta sul cucinotto, quattro camere da letto, di cui due con affacci esterni su Viale Regina Margherita e due con affacci interni che danno sul distacco con l'altra palazzina, due servizi (uno finestrato) e un bellissimo terrazzo di 20 mq circa; ad offrire ulteriore spazio e funzionalità all'abitazione, un'ampia e comoda soffitta finestrata. L'appartamento si presenta da ristrutturare, con un grande potenziale di personalizzazione degli spazi secondo le proprie esigenze. Riscaldamento autonomo e spese di condominio di circa 120 euro mensili. La posizione in cui si colloca l'immobile è strategica e centrale, vicino a tutte le attività commerciali e di trasporto pubblico. Ottima opportunità abitativa, ideale per chi cerca comodità e desidera vivere in una zona ben servita. Questa soluzione rappresenta anche un ottimo investimento. LE PRESENTI INDICAZIONI E/O PLANIMETRIE E RENDERING SONO PURAMENTE INDICATIVE E NON COSTITUISCONO ELEMENTO CONTRATTUALE.

Condizioni economiche

Contratto: Vendita
Prezzo: 820'000€
Spese condominiali: 120€

Informazioni principali

Tipologia: Attico
Città: Roma
Superficie: 140 m²
N° locali: 5
N° bagni: 2
Piano:
Cucina: Cucinotto

Efficenza energetica

Classe energetica:
Anno di costruzione: 0
Riscaldamento: autonomo

Caratteristiche

Ascensore: Si

Dati inserzione

ID Offrocasa.com: 10655257
Data inserimento: 01/02/2025
Rif. Agenzia: Cod. rif 3209297VRG
Rif. Agenzia Cod. rif 3209297VRG

Professionecasa

Via Alessandria 99 - Roma
06/83964319
Richiedi Info dal form:
Accetto l'Informativa Privacy


Condividi

Professionecasa

Via Alessandria 99 - Roma

Attico in Vendita a Roma, 820'000€, 140 m²

Chiama
Contatta