Trilocale in Vendita a Morciano di Romagna, 230'000€, 112 m², con Box

Locali: 3
Bagni: 2
Camere: 2
Piano: 1°
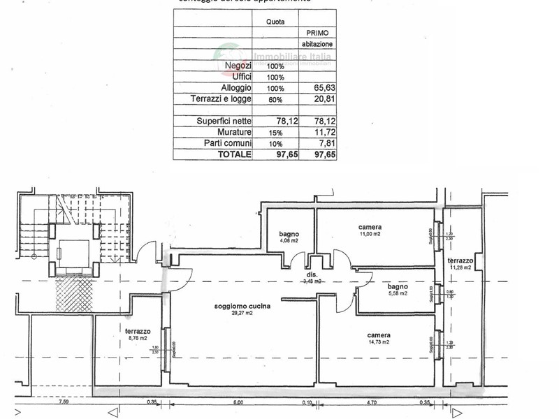
Centrale, nuovo, con riscaldamento a pavimento e tapparelle elettriche, venduto chiavi in mano! L'appartamento si trova al primo piano con ascensore, in palazzina dal contesto signorile; è disposto tutto su un unico livello e presenta: un comodo soggiorno di 30mq, 2 bagni, 2 comode camere e 2 terrazzi, uno nella zona giorno e l'altro nella zona notte. Posizione eccezionale, centralissima, vicina a tutti i servizi, riscaldamento a pavimento, tapparelle elettriche e predisposizione per l'aria condizionata. Abbinato all'immobile viene venduto anche un garage di circa 25mq. E' possibile anche comprare un secondo garage al prezzo di circa 25 mila euro. Per informazioni: Giacomo 3492180621 - Luca 3387154441

Condizioni economiche

Contratto: Vendita
Prezzo: 230'000€
Arredato: No
Spese condominiali: 45€
Libero: Si

Informazioni principali

Tipologia: Trilocale
Città: Morciano di Romagna
Superficie: 112 m²
N° locali: 3
N° bagni: 2
N° Camere: 2
Piano:
Box: Si
Cucina: Angolo Cottura
Giardino: Comune

Efficenza energetica

Classe energetica: C
Ipe: 62.63 kwm2
Climatizzatore: Si
Anno di costruzione: 2014
Riscaldamento: autonomo a pavimento

Caratteristiche

Ascensore: Si

Dati inserzione

ID Offrocasa.com: 10654020
Data inserimento: 01/02/2025
Rif. Agenzia: NDR 1
Rif. Agenzia NDR 1

IMMOBILIARE ITALIA

Via Roma, 23 - San Giovanni in Marignano (Rimini)
0541827270
Richiedi Info dal form:
Accetto l'Informativa Privacy


IMMOBILIARE ITALIA

Via Roma, 23 - San Giovanni in Marignano (Rimini)

Trilocale in Vendita a Morciano di Romagna, 230'000€, 112 m², con Box

Chiama
Contatta