Laboratorio in Vendita a Fucecchio, 170'000€, 382 m²

Locali: 3
Piano: piano terra
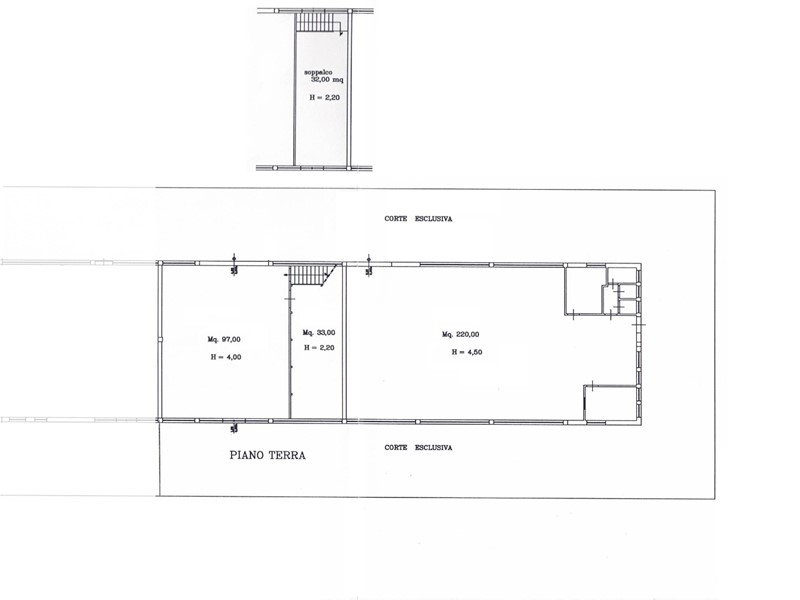
Rif. 930 - Fucecchio frazione - Laboratorio al piano terra con spazio esclusivo circostante per una superficie di circa 350 mq e più precisamente: un locale di mq 97 (altezza 4mt) con ampia apertura di ingresso comunicante con un altro locale di 220mq (altezza 4,5 mt) con bagni, inframmezzato da locale magazzino con soppalco uso uffici di 33mq al piano terra e 33 mq al piano primo (altezza2,2mt).

Condizioni economiche

Contratto: Vendita
Prezzo: 170'000€
Prezzo trattabile: si

Informazioni principali

Tipologia: Laboratorio
Città: Fucecchio
Superficie: 382 m²
N° locali: 3
Piano: piano terra

Efficenza energetica

Classe energetica: In attesa di certificazione
Ristrutturato: si

Dati inserzione

ID Offrocasa.com: 10642965
Data inserimento: 26/01/2025
Rif. Agenzia: 1303517/544/930
Rif. Agenzia 1303517/544/930

ABITARE Agenzia Immobiliare

Via Via Cesare Battisti,, 68 - Fucecchio (Firenze)
057120158
Richiedi Info dal form:
Accetto l'Informativa Privacy


ABITARE Agenzia Immobiliare

Via Via Cesare Battisti,, 68 - Fucecchio (Firenze)

Laboratorio in Vendita a Fucecchio, 170'000€, 382 m²

Chiama
Contatta