Capannone in Vendita a Manfredonia, 1'550'000€, 15000 m²

Piano: Terra
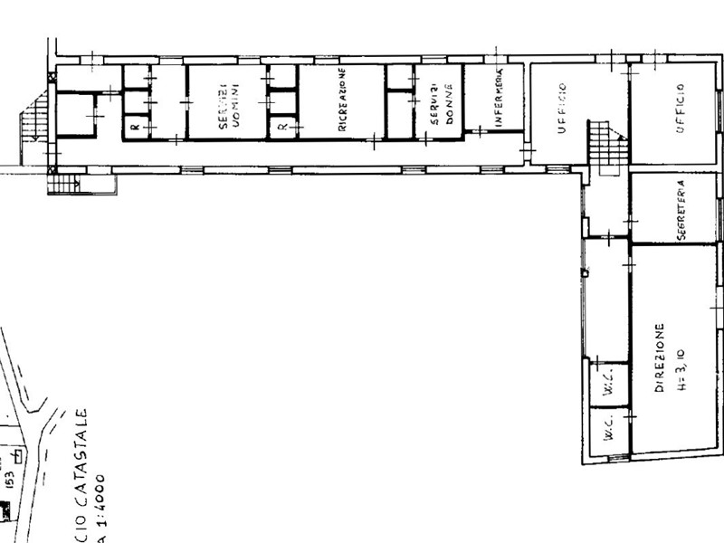
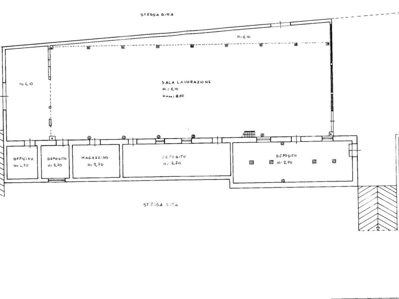
Il complesso immobiliare ha una superficie totale di 15.000 mq ed è ubicato in una posizione logisticamente vantaggiosa, trovandosi in particolare: a 600 mt dall'uscita «Manfredonia Sud» della Strada Statale n. 89, a 1.500 mt dal centro abitato e la nuova zona residenziale di Manfredonia, a 1.500 mt dalla locale stazione dei Carabinieri. L'accesso all'area è garantito sia dalla Via Giuseppe Di Vittorio, una delle principale arterie viarie che porta fino al centro della città, che dalla Strada Statale n. 169 (Via delle Saline), asse di collegamento Siponto-Cerignola. L'area è costituita da 10.000mq di terreno da adibire a parcheggio e circa 5.000mq su cui insiste un fabbricato già esistente da destinare a sviluppo commerciale, alimentare e non alimentare. Il complesso è dotato di una superficie lineare fronte-strada di oltre 300mt che garantisce una grande visibilità. L'area da destinare a parcheggio a raso di circa 10.000 mq garantisce 200 posti auto. L'area è già dotata delle autorizzazioni per 4.300mq da destinare a commercio al dettaglio, così ottenute: -media superficie di 2.500mq - NON ALIMENTARE- media superficie di 1.800mq - ALIMENTARE (da rinnovare) Vi è anche la possibilità di realizzare una stazione di servizio fronte strada, oltre bar, per altri 1.000m

Condizioni economiche

Contratto: Vendita
Prezzo: 1'550'000€

Informazioni principali

Tipologia: Capannone
Città: Manfredonia
Superficie: 15000 m²
Piano: Terra

Efficenza energetica

Classe energetica:
Anno di costruzione: 0

Dati inserzione

ID Offrocasa.com: 10639675
Data inserimento: 22/01/2025
Rif. Agenzia: Cod. rif 3206278VCG
Rif. Agenzia Cod. rif 3206278VCG

Gabetti

Corso Garibaldi 86 - San Severo (Foggia)
0882/430083
Richiedi Info dal form:
Accetto l'Informativa Privacy


Gabetti

Corso Garibaldi 86 - San Severo (Foggia)

Capannone in Vendita a Manfredonia, 1'550'000€, 15000 m²

Chiama
Contatta