Casa Semi Indipendente in Affitto a Livorno, zona Montenero, 2'700€, 190 m², con Box

Locali: 9
Camere: 2
Piano: 1
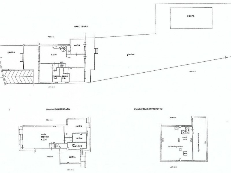
Montenero Basso, in contesto residenziale e signorile, proponiamo villa disposta su tre livelli di circa 360 metri quadrati con parco e piscina. L'immobile è così composto: al piano terra grande salone con camino e pavimenti in parquet, cucina abitabile con accesso a patio esterno e giardino, due camere, e due servizi (nuovi) con piatto doccia e finestra. Nel seminterrato si trova altra sala, corredata di forno e camino, ideale per cene e serate in compagnia e famiglia, oltre ad altre due stanze (ideali per camere per eventuali ospiti) e un vano ad uso lavanderia / wc. Al piano superiore, nel sottotetto praticabile) sono presenti altre due stanze ideali per essere adibite a studio o sala giochi per bambini. Parco esclusivo di circa 800 meri quadrati con piscina e comodo locale tecnico. Nel giardino è presente un comodo gazebo ideale per le serate estive. Riscaldamento autonomo con caldaia a gas. Ideale per famiglie che apprezzano la lontananza dalla città e le sue comodità come la tranquillità. Contratto libero per la durata di 4 anni + 4. Disponibile da Gennaio 2026. Richiesta fidejussione bancaria.

Condizioni economiche

Contratto: Affitto
Prezzo: 2'700€
Arredato: No

Informazioni principali

Tipologia: Casa Semi Indipendente
Città: Livorno
Zona: Montenero
Vicinanze: Periferia
Superficie: 190 m²
N° locali: 9
N° Camere: 2
Piano: 1
Box: Si
Posto auto: Si
Cucina: Abitabile
Giardino: Si

Efficenza energetica

Classe energetica: G
Ipe: 175 KWh/m2a
Anno di costruzione: 0
Riscaldamento: Autonomo

Dati inserzione

ID Offrocasa.com: 10638226
Data inserimento: 20/01/2025
Rif. Agenzia: LI-1008
Rif. Agenzia LI-1008

Tua immobiliare

Via Galeazzo Pardera 2 - Livorno
345.3360975
Richiedi Info dal form:
Accetto l'Informativa Privacy


Tua immobiliare

Via Galeazzo Pardera 2 - Livorno

Casa Semi Indipendente in Affitto a Livorno, zona Montenero, 2'700€, 190 m², con Box

Chiama
Contatta