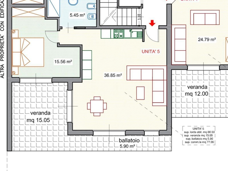
Trilocale in Vendita a Trinità d'Agultu e Vignola, 165'000€, 77 m²
        
    
        
    
        
    
    
        Proponiamo in vendita un bilocale in fase di costruzione, situato a soli 6 km dalla spiaggia, con una splendida vista panoramica sul mare. Attualmente disponibile sulla carta, l'immobile offre un'ottima opportunità di personalizzazione degli spazi interni, in quanto può essere modificato a seconda delle proprie esigenze, sia nella distribuzione che nelle finiture.
La proprietà, progettata per offrire il massimo del comfort, è composta da un ampio soggiorno con angolo cottura, una spaziosa camera da letto e un bagno. Le ampie vetrate permettono di godere della vista sul mare, creando un ambiente luminoso e accogliente.
L'immobile non viene venduto arredato attualmente, ma è possibile personalizzare gli interni per adattarli al proprio stile. Realizzato con materiali di alta qualità, l'appartamento rappresenta un'ottima soluzione per chi desidera vivere in un contesto esclusivo, tranquillo e a pochi passi dalle meravigliose spiagge della zona.
Completano la proprietà un posto auto privato e la possibilità di scegliere tra diverse opzioni per la disposizione degli spazi.
Non perdere questa opportunità unica di acquistare una casa in una posizione privilegiata, con la possibilità di personalizzarla completamente!
	
    
    
    
        
        
            Condizioni economiche
            
                Contratto: Vendita
            
            
                Prezzo: 165'000€
            
            
                
                    Arredato: No
                
            
         
        
            Informazioni principali
            
                Tipologia: Trilocale
            
            
                Città: Trinità d'Agultu e Vignola
            
            
                
                    Vicinanze: Vicinanze Mare
                
            
                
                    Superficie: 77 m²
                
            
                
                    N° locali: 3
                
            
                
                    N° Camere: 1
                
            
                
                    Piano: 1
                
            
                
                    N° balconi: 1
                
            
                
                    Posto auto: Si
                
            
         
        
            Efficenza energetica
            
                Classe energetica: A
            
            
                
                    Anno di costruzione: 2025
                
            
                
                    Condizioni stabile: In costruzione
                
            
		 
        
                
                    Caratteristiche
                    
                        
                            Ascensore: Si
                        
                    
                 
            
            
                Dati inserzione
                
                    ID Offrocasa.com: 10635574
                
                
                
                    Data inserimento: 16/01/2025
                
                
                    
                        Rif. Agenzia: 03
                    
                
             
        
	 
    
    
        
Trilocale in Vendita a Trinità d'Agultu e Vignola, 165'000€, 77 m²