Terreno edificabile in Vendita a Sedriano, 100'000€, 500 m²

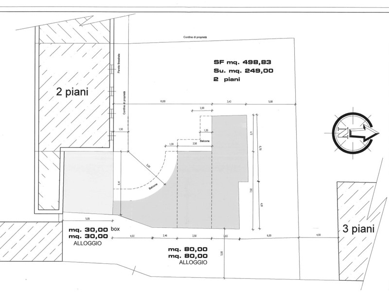
Sedriano, in posizione centrale e ben servita da tutti i negozi, vicinanza scuole e trasporti pubblici.\nTerreno edificabile di mq 500 circa con possibilità di edificare 200 mq su due livelli, con giardino privato e box.\nPerfetto per due famiglie che desiderano vivere vicine, ma con la possibilità di avere spazi separati per la propria indipendenza.\nQuesto terreno offre un'opportunità unica per realizzare due abitazioni con giardino privato e ampi spazi comuni.\nSe desideri creare una casa per te e i tuoi cari, mantenendo al contempo la tua indipendenza, questo è il terreno che fa per te!\nContattaci per maggiori informazioni e per organizzare una visita.\n

Condizioni economiche

Contratto: Vendita
Prezzo: 100'000€

Informazioni principali

Tipologia: Terreno edificabile
Città: Sedriano
Superficie: 500 m²

Efficenza energetica

Classe energetica: N.C.
Ristrutturato: -----

Dati inserzione

ID Offrocasa.com: 10632108
Data inserimento: 12/01/2025
Rif. Agenzia: TerrenoSedriano
Rif. Agenzia TerrenoSedriano

Immobiliare Nord Ovest

via Simone da Corbetta, 142 - Corbetta (Milano)
0297272349
Richiedi Info dal form:
Accetto l'Informativa Privacy


Immobiliare Nord Ovest

via Simone da Corbetta, 142 - Corbetta (Milano)

Terreno edificabile in Vendita a Sedriano, 100'000€, 500 m²

Chiama
Contatta