Ufficio in Vendita a Rimini, 89'925€, 67 m²

Locali: 2
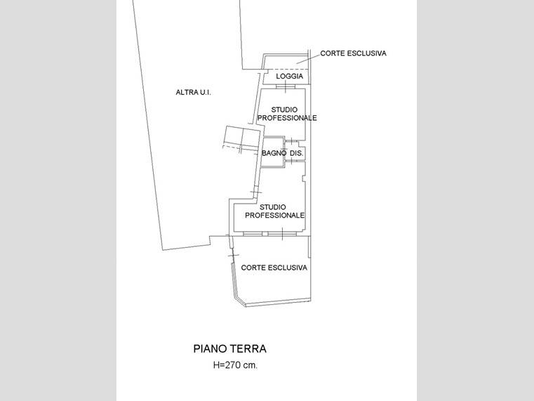
Vendesi in Asta a Rimini, unità immobiliare al piano terra composta da due uffici, un bagno, un disimpegno, due corti di esclusiva pertinenza oltre ad una autorimessa al piano interrato accessibile tramite monta auto. Per Info ed appuntamenti: 800129769 oppure 3519120169. Possibilità di Mutuo prima casa al 100% in 20 anni www.alquadrato.net Servizio Aste.

Condizioni economiche

Contratto: Vendita
Prezzo: 89'925€
Arredato: No

Informazioni principali

Tipologia: Ufficio
Città: Rimini
Superficie: 67 m²
N° locali: 2

Efficenza energetica

Classe energetica: VA
Anno di costruzione: 0
Condizioni stabile: Buono

Dati inserzione

ID Offrocasa.com: 10625396
Data inserimento: 28/12/2024
Rif. Agenzia: 2653
Rif. Agenzia 2653

Consulenti Immobiliari Associati Srl

V.le Guglielmo Oberdan 444 - Cesena (FC)
334.7771349
Richiedi Info dal form:
Accetto l'Informativa Privacy


Consulenti Immobiliari Associati Srl

V.le Guglielmo Oberdan 444 - Cesena (FC)

Ufficio in Vendita a Rimini, 89'925€, 67 m²

Chiama
Contatta