Casa Indipendente in Vendita a Roccaforzata, 95'000€, 145 m²

Locali: 5
Bagni: 1
Camere: 2
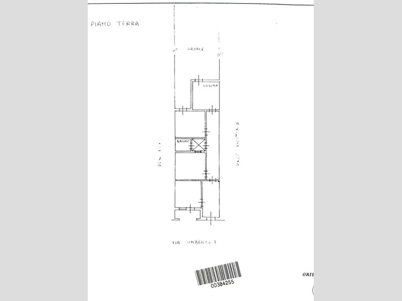
Se sei alla ricerca di un'opportunità unica nel suo genere, questa casa indipendente è ciò che stai cercando. A Roccaforzata, in zona centrale e ben servita, proponiamo in vendita ampia soluzione al piano terra caratterizzata da spazi generosi con ambienti ben distribuiti e luminosi. La proprietà che vanta una superficie di circa 145 mq è composta da ingresso disimpegno, salone, ampia sala pranzo con chiostrina, due spaziose camere da letto matrimoniali e un bagno con vasca. Completa la proprietà l'ortale retrostante di circa 460 mq in parte pavimentato in parte lasciato a terreno vivo ideale per la vita all'aperto.

Condizioni economiche

Contratto: Vendita
Prezzo: 95'000€
Libero: Si

Informazioni principali

Tipologia: Casa Indipendente
Città: Roccaforzata
Superficie: 145 m²
N° locali: 5
N° bagni: 1
N° Camere: 2
Cucina: Abitabile
Giardino: Privato

Efficenza energetica

Classe energetica:
Anno di costruzione: 0

Dati inserzione

ID Offrocasa.com: 10622833
Data inserimento: 20/12/2024
Rif. Agenzia: Cod. rif 3200910VRG
Rif. Agenzia Cod. rif 3200910VRG

Professionecasa

via costantinopoli 69 - Pulsano (Taranto)
099 5339810
Richiedi Info dal form:
Accetto l'Informativa Privacy


Professionecasa

via costantinopoli 69 - Pulsano (Taranto)

Casa Indipendente in Vendita a Roccaforzata, 95'000€, 145 m²

Chiama
Contatta