Casa di corte in Vendita a Cascina, zona San Prospero Navacchio, 270'000€, 240 m²

Locali: 10
Bagni: 4
Camere: 6
Piano: su più livelli
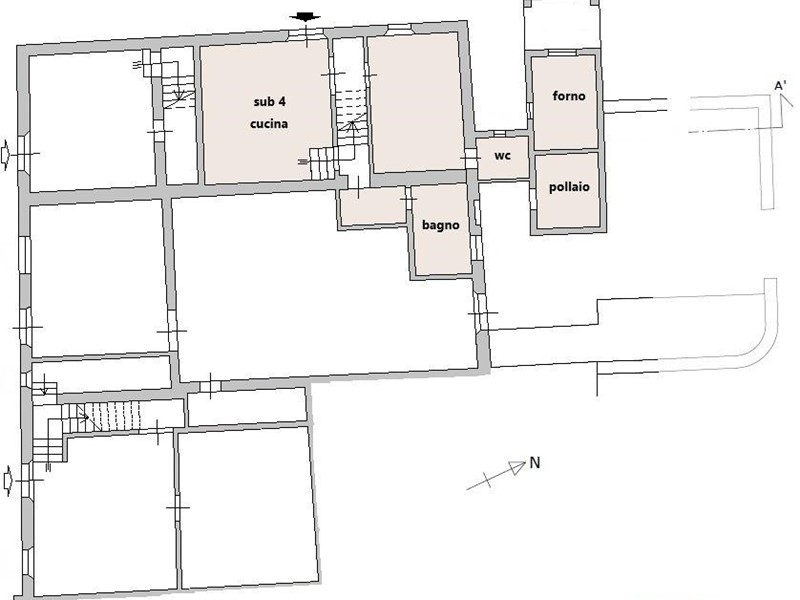
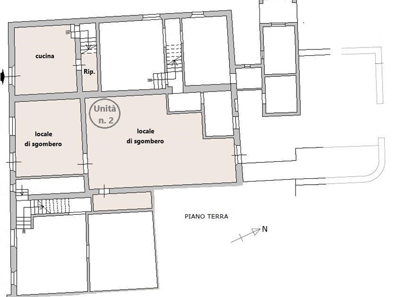
Rif. V570 NAVACCHIO VIC. Piccolo fabbricato costituito da tre terratetti ad uso residenziale con annessi locali di sgombero e circondati da corte comune di circa 2600 mq (articolata in ampi spazi verdi, aree ad uso parcheggio e in parte terreno agricolo). Il fabbricato è un edificio di interesse tipologico, il tipico rustico toscano, inserito in contesto pregievole per la bellezza della natura, la tranquillità e allo stesso tempo per la vicinanza ad ogni tipo di servizio. Tutti e tre i terratetti si sviluppano su due livelli per una superficie a civile abitazione di circa 240 e circa 180 mq come locali di sgombero tutto completamente da ristrutturare fatta eccezione per la copertura che è stata rifatta nel 2017. Unità n. 1 Terratetto angolare disposto su due livelli e composto al P.T. da due vani oltre a un bagno e w.c.; al P.1° raggiungibile da scala interna in muratura, un piccolo disimpegno, due vani e un ampio locale di sgombero. E' corredato al piano terra ed esterno all'abitazione di un caratteristico forno con annesso pollaio. Unità n. 2 Terratetto angolare disposto su due livelli e composto al P.T. da un vano a abitazione civile con ripostiglio. Al P.1° raggiungibile da scala interna in muratura un vano per civile abitazione, un bagno e un ampio locale di sgombero. Sono annessi a questo terratetto, due grandi locali di sgombero al piano terra, comunicanti fra loro con accessi esterni distinti. Unità n. 3 Terratetto centrale disposto su due livelli composto al P.T. da un vano a civile abitazione, bagno e un ampio locale di sgombero; al P.1° raggiungibile da scala interna in muratura, un piccolo disimpegno, tre vani per civile abitazione e un ampio locale di sgombero. Richiesta €270.000

Condizioni economiche

Contratto: Vendita
Prezzo: 270'000€
Prezzo trattabile: si

Informazioni principali

Tipologia: Casa di corte
Città: Cascina
Zona: San Prospero Navacchio
Superficie: 240 m²
N° locali: 10
N° bagni: 4
N° Camere: 6
Piano: su più livelli
Posto auto: 6
Giardino: condominiale

Efficenza energetica

Classe energetica: G
Ristrutturato: no

Dati inserzione

ID Offrocasa.com: 10621232
Data inserimento: 18/12/2024
Rif. Agenzia: 1299456/236/V570
Rif. Agenzia 1299456/236/V570

2V Immobiliare

Corso Corso G. Matteotti,, 18 - Cascina (Pisa)
050702312
Richiedi Info dal form:
Accetto l'Informativa Privacy


2V Immobiliare

Corso Corso G. Matteotti,, 18 - Cascina (Pisa)

Casa di corte in Vendita a Cascina, zona San Prospero Navacchio, 270'000€, 240 m²

Chiama
Contatta