Villetta a schiera in Vendita a Pisa, zona La Vettola, 340'000€, 190 m², con Box

Locali: 10+
Bagni: 4
Camere: 3
Piano: 1°
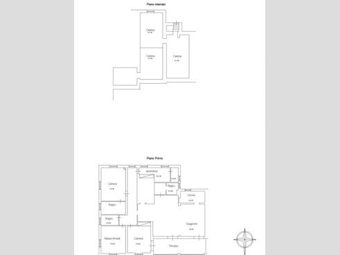
La Vettola - Pisa Villetta a schiera in vendita - 180 vani - 190 mq - con ingresso indipendente - posto al piano 1° composto da 3 camere e 4 bagni Classe energetica: In attesa di certificazione - Rif. 11 Appartamento in Villa sul Lungarno Gabriele D'Annunzio - completamente da ristrutturare Situato in una posizione privilegiata, questo appartamento in villa offre una rara combinazione di tranquillità e comodità. Immerso in un parco privato, con giardino di 2500 mq, e a pochi passi dal mare e dalla storica città di Pisa, questa proprietà è un vero gioiello per chi cerca un rifugio sereno senza rinunciare alla vicinanza ai servizi urbani. Con una superficie commerciale di 190 mq, l'appartamento è distribuito su sei locali spaziosi, tra cui una grande sala da pranzo con cucina e terrazza con vista parco, e un primo bagno privato. Il disimpegno ci porta alla zona notte con tre camere matrimoniali con doppio affaccio, di cui una con bagno padronale, una stanza armadi/zona lavanderia, altri 2 bagni, All'esterno completano la proprietà un locale magazzino ripostiglio di circa 90 mq e due posti auto coperti oltre a uno scoperto. La possibilità di frazionare l'immobile in due appartamenti distinti lo rende ideale per famiglie numerose o per chi desidera un investimento a lungo termine. Il giardino di proprietà, che si estende per circa 2500 mq, offre ampi spazi verdi dove poter trascorrere momenti di relax all'aria aperta. L'immobile, costruito nel 1964 e da ristrutturare, rappresenta un'opportunità unica per personalizzare ogni dettaglio secondo i propri gusti e necessità. Non perdere l'occasione di vivere in una residenza esclusiva sul Lungarno Gabriele D'Annunzio, con tutti i vantaggi di una villa e la comodità di un appartamento. Contattaci per maggiori informazioni e per prenotare una visita.

Condizioni economiche

Contratto: Vendita
Prezzo: 340'000€
Prezzo trattabile: si

Informazioni principali

Tipologia: Villetta a schiera
Città: Pisa
Zona: La Vettola
Superficie: 190 m²
N° locali: 10+
N° bagni: 4
N° Camere: 3
Piano:
Box: si
Posto auto: 3
Giardino: privato

Efficenza energetica

Classe energetica: In attesa di certificazione
Anno di costruzione: 1964
Ristrutturato: no

Dati inserzione

ID Offrocasa.com: 10608933
Data inserimento: 03/12/2024
Rif. Agenzia: 1283890/1925/11
Rif. Agenzia 1283890/1925/11

Selena Immobiliare

Via Via Conte Fazio,, 11 - Pisa
3513280186
Richiedi Info dal form:
Accetto l'Informativa Privacy


Selena Immobiliare

Via Via Conte Fazio,, 11 - Pisa

Villetta a schiera in Vendita a Pisa, zona La Vettola, 340'000€, 190 m², con Box

Chiama
Contatta