Casa Indipendente in Vendita a Capannori, zona Santa Margherita, 170'000€, 240 m², arredato
        
    
        
    
        
    
    
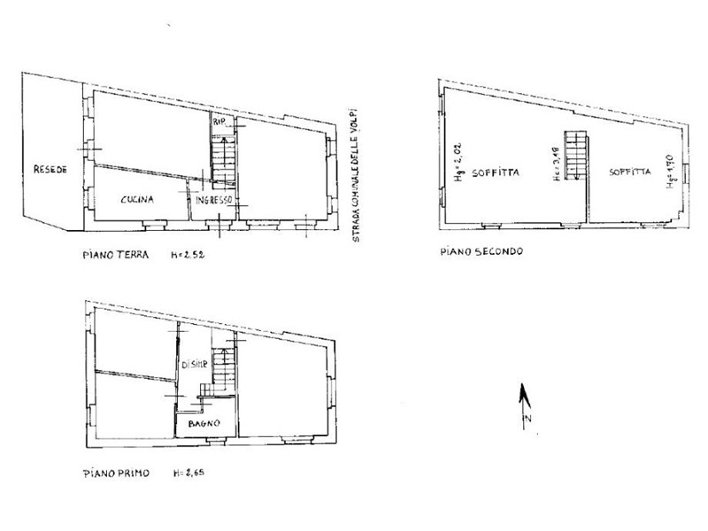
        SANTA MARGHERITA (CAPANNORI) - TERRATETTO FINALE DI CIRCA 240 MQ COMPRESO DI MANSARDA, COMPOSTO DA: SOGGIORNO, CUCINA ABITABILE CON CAMINO, SALA DA PRANZO E RIPOSTIGLIO/BAGNO DI SERVIZIO AL PIANO TERRA; AL PRIMO PIANO TROVIAMO: 2 CAMERE MATRIMONIALI E 1 CAMERA DOPPIA, BAGNO CON DOCCIA. A CORREDO MANSARDA ABITABILE ATTUALMENTE ALLO STATO GREZZO, DIVISA IN DUE VANI PLURIUSO DOVE E' POSSIBILE RICAVARE ULTERIORI CAMERE E BAGNO. INFISSI IN LEGNO CON DOPPIO VETRO E SCURONI E AL PIANO TERRA INFISSI CON INFERRIATE. L'IMMOBILE E' ABITABILE, NECESSITA DI LAVORI DI AMMODERNAMENTO E IL TETTO E' DA RIGUARDARE. PREZZO TRATTABILE!!
	
    
    
    
        
        
            Condizioni economiche
            
                Contratto: Vendita
            
            
                Prezzo: 170'000€
            
            
                
                    Prezzo trattabile: si
                
            
                
                    Arredato: si
                
            
         
        
            Informazioni principali
            
                Tipologia: Casa Indipendente
            
            
                Città: Capannori
            
            
                
                    Zona: Santa Margherita
                
            
                
                    Superficie: 240 m²
                
            
                
                    N° locali: 4
                
            
                
                    N° bagni: 1
                
            
                
                    N° Camere: 3
                
            
                
                    Piano: su più livelli
                
            
                
                    Posto auto: 1
                
            
         
        
            Efficenza energetica
            
                Classe energetica: G
            
            
                
                    Ipe: 140,22 kwm2
                
            
                
                    Anno di costruzione: ante 67
                
            
                
                    Ristrutturato: si
                
            
		 
        
            
                Dati inserzione
                
                    ID Offrocasa.com: 10602196
                
                
                
                    Data inserimento: 23/11/2024
                
                
                    
                        Rif. Agenzia: 1246557/1724/F134
                    
                
             
        
	 
    
    
        
Casa Indipendente in Vendita a Capannori, zona Santa Margherita, 170'000€, 240 m², arredato