Casa Semi Indipendente in Vendita a Montespertoli, zona Montagnana, 620'000€, 360 m², con Box

Locali: 9
Bagni: 3
Camere: 6
Piano: piano terra
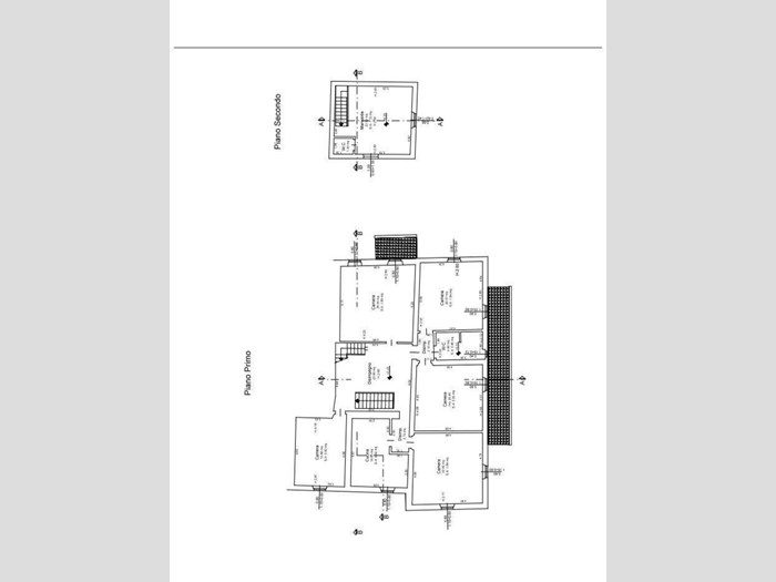
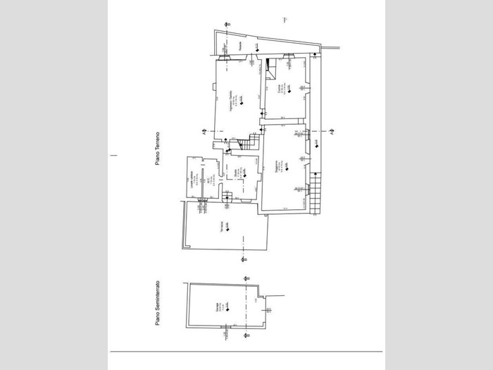
Montespertoli, zona Montagnana, casale rustico da ristrutturare, di grandi metrature, al piano terra: due ampie sale di 45 mq ciascuna, cucina abitabile con camino, un bagno finestrato, due ripostigli, una camera e una terrazza di 43 mq. Al piano primo 5 camere grandi, altro bagno finestrato, Più ulteriore cucina. Al piano mansardato altra camera con bagno. L'abitazione, libera su tre lati ha una buona esposizione con vista aperta sulle colline circostanti. Il terreno intorno è di un ettaro con 100 piante di ulivo. Le soffitte a mezzanine o con travi a vista sono molto alte. Completa la proprietà un garage di 43 mq. L'immobile per la grandezza della metratura e la posizione collinare e panoramica si presta anche alla creazione di strutture ricettive. Rif: V1238 per info chiamare il 366471555 CLASSE ENERGETICA: G 289,34 kWh/m3 a

Condizioni economiche

Contratto: Vendita
Prezzo: 620'000€

Informazioni principali

Tipologia: Casa Semi Indipendente
Città: Montespertoli
Zona: Montagnana
Superficie: 360 m²
N° locali: 9
N° bagni: 3
N° Camere: 6
Piano: piano terra
Box: si
Giardino: privato
Esposizione: Nord Ovest Sud

Efficenza energetica

Classe energetica: G
Ipe: 289,00 kwm2
Anno di costruzione: 1800
Ristrutturato: no

Dati inserzione

ID Offrocasa.com: 10590630
Data inserimento: 09/11/2024
Rif. Agenzia: 1272872/1870/V1238
Rif. Agenzia 1272872/1870/V1238

Montelupo Affari

Via Via R. Caverni,, 43 - Montelupo Fiorentino (Firenze)
0571913404
Richiedi Info dal form:
Accetto l'Informativa Privacy


Montelupo Affari

Via Via R. Caverni,, 43 - Montelupo Fiorentino (Firenze)

Casa Semi Indipendente in Vendita a Montespertoli, zona Montagnana, 620'000€, 360 m², con Box

Chiama
Contatta