Capannone in Affitto a Bologna, zona Bolognina, 3'100€, 283 m²

Locali: 1
Piano: t
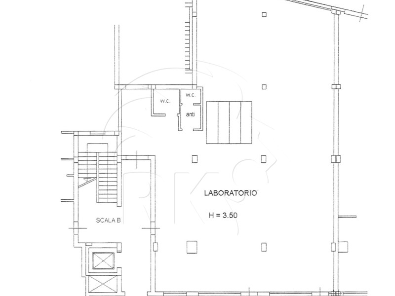
VIA GOBETTI (Bologna-Laboratorio-Affitto) - Libero a GENNAIO, in zona servitissima (adiacente Stazione Centrale di Bologna, CentroLame, Tangenziale), laboratorio di ca. 283 mq sito al piano terra composto da unico vano con 2 bagni. Pavimento galleggiante. N. 2 posti auto assegnati coperto ed anche parcheggi liberi nelle immediate vicinanze. Riscaldamento e condizionamento centralizzati a consumo. L'ufficio si trova all'interno di un complesso di recente costruzione ottimamente collegato. Disponibili immobili di diverse metrature nello stesso centro. LE IMMAGINI RIGUARDANO VARI LABORATORI E UFFICI DISPONOBILI Responsabile della locazione IRENE GUIDETTI Compra con noi per investimento per avere una redditività superiore al mercato tradizionale della locazione ! REALKASA è l’agenzia immobiliare specializzata anche nella gestione di appartamenti per BREVI PERIODI. Contattaci per affidarci il tuo immobile al numero 051.431895 numero dedicato per questo tipo di servizio. Visita il nostro sito www.realkasa.it per visionare altre foto e la scheda dettagliata dell'immobile. -------------------------------------------------------------------------------------------------------------------------------------------- La REALKASA Immobiliare è una realtà di intermediazione immobiliare, giovane e moderna un gruppo di persone che opera mettendo al centro gli interessi dei propri clienti impegnandosi per soddisfarli nei tempi più brevi e con la migliore qualità. La nostra missione è quella di trasferire ai nostri clienti il più alto livello di professionalità sul mercato e garantire la massima sicurezza di ogni operazione. Ti consigliamo e ti affianchiamo durante tutte le varie fasi sia che si tratti di locazioni sia che si tratti di compravendita, mettendo a tua disposizione la nostra esperienza nel settore. REALKASA - IL TUO PARTNER IMMOBILIARE. Servizi: Compravendite, Locazioni, Gestione immobiliare e Affitti Brevi.

Condizioni economiche

Contratto: Affitto
Prezzo: 3'100€
Arredato: No

Informazioni principali

Tipologia: Capannone
Città: Bologna
Zona: Bolognina
Superficie: 283 m²
N° locali: 1
Piano: t
Posto auto: Si

Efficenza energetica

Classe energetica: C
Anno di costruzione: 2001
Condizioni stabile: Ottimo
Riscaldamento: Centralizzato

Caratteristiche

Ascensore: Si

Dati inserzione

ID Offrocasa.com: 10589698
Data inserimento: 08/11/2024
Rif. Agenzia: 2481DG
Rif. Agenzia 2481DG

Realkasa

Via Andrea Costa 56 - Bologna (BO)
051.431895
Richiedi Info dal form:
Accetto l'Informativa Privacy


Realkasa

Via Andrea Costa 56 - Bologna (BO)

Capannone in Affitto a Bologna, zona Bolognina, 3'100€, 283 m²

Chiama
Contatta