Immobile commerciale in Vendita a Spinetoli, 5'000'000€, 4000 m², con Box

Locali: 10+
Piano: t
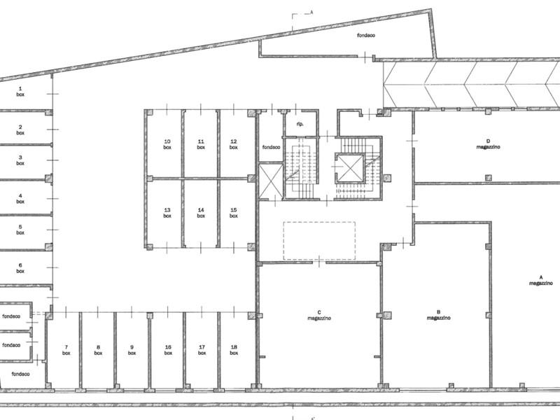
COMUNE DI SPINETOLI (AP) - LOCALITA' PAGLIARE DEL TRONTO - Nuovo complesso edilizio in fase di ultimazione a destinazione commerciale con magazzini, uffici direzionali, immobili residenziali con box auto e fondaci, situato a poche centinaia di metri dallo svicolo del raccordo Ascoli-Mare, a 10 km dall'uscita di S. Benedetto del T. dell'autostrada A14. L'acquisto può essere effettuato in blocco per l'intero, oppure per singole unità. Il fabbricato è distribuito su quattro livelli di circa 1.000 mq a piano ed ha ampia corte esterna adibita a parcheggio scoperto. Nel PIANO INTERRATO ci sono 4 magazzini, 5 fondaci e 18 box auto. Al PIANO TERRA, ancora da suddividere, sono previsti 3 negozi e due uffici o comunque ancora personalizzabile. Il prezzo richiesto per i locali del piano terra è di 1.300 Euro/mq, suscettibile di variazioni in base alla grandezza e posizione. Al PIANO PRIMO sono stati realizzati 10 appartamenti da 60 a 108 mq ciascuno oltre balconi. Il prezzo degli appartamenti, esclusi i box auto da conteggiare separatamente, variano dai 110.000 ai 190.000 Euro. Al PIANO SECONDO sono stati realizzati 5 appartamenti da 46 a 147 mq con ampi terrazzi con prezzi che variano dai 140.000 ai 400.000 Euro. Gli appartamenti sono quasi ultimati, mancano le porte interne e i pavimenti delle camere da letto, bagni completati. Sono dotati di impianto a pavimento per il riscaldamento e split a parete per il raffrescamento. Entrambi gli impianti sono alimentati con pompa di calore aria/acqua e pannelli solari termici per il riscaldamento e acqua sanitaria. Possibile realizzare un sistema "ibrido" gas/energia elettrica per la presenza delle necessarie predisposizioni. Classe energetica B. DiLeoImmobiliare Rif. 6769

Condizioni economiche

Contratto: Vendita
Prezzo: 5'000'000€
Arredato: No

Informazioni principali

Tipologia: Immobile commerciale
Città: Spinetoli
Vicinanze: Strada Trafficata
Superficie: 4000 m²
N° locali: 10+
Piano: t
Box: Si

Efficenza energetica

Classe energetica: B
Ipe: 87 KWh/m2a
Anno di costruzione: 2024
Condizioni stabile: Ottimo
Riscaldamento: Autonomo

Dati inserzione

ID Offrocasa.com: 10583391
Data inserimento: 31/10/2024
Rif. Agenzia: 6769
Rif. Agenzia 6769

DiLeoImmobiliare

via Pasubio n. 10 piano 2° - San Benedetto del Tronto (AP)
0735.653104
Richiedi Info dal form:
Accetto l'Informativa Privacy


DiLeoImmobiliare

via Pasubio n. 10 piano 2° - San Benedetto del Tronto (AP)

Immobile commerciale in Vendita a Spinetoli, 5'000'000€, 4000 m², con Box

Chiama
Contatta