Capannone in Vendita a Cerreto Guidi, zona Stabbia, 1'050'000€, 1591 m²

Locali: 6
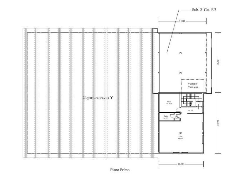
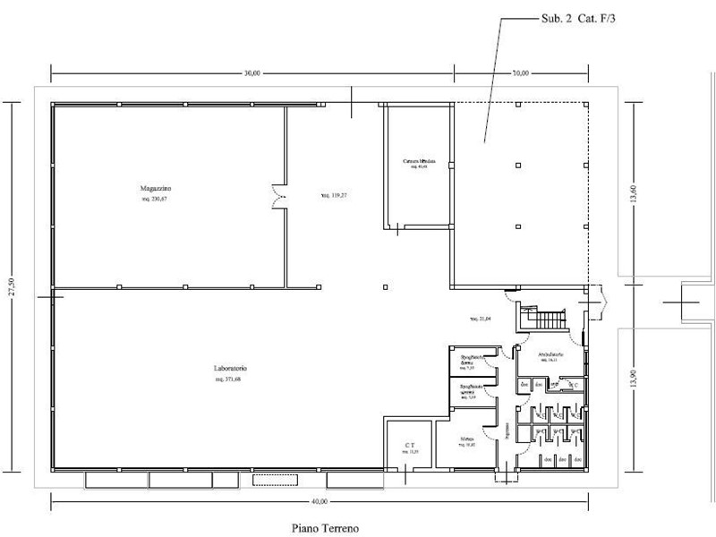
Il capannone in vendita è stato in uso fino a metà del 2023, si trova nella zona industriale di Stabbia, Cerreto Guidi. E’ un capannone libero su 4 lati, utilizzato come calzaturificio, si sviluppa prevalentemente al piano terra. Gli impianti sono tutti funzionanti compreso quello dell’aria condizionata installato nel corso del 2021. Il capannone presenta nella parte anteriore gli uffici ed i servizi oltre a stanza riunioni e stanza campionario ed una stanza blindata costruita per custodire la pelle di alta qualità che veniva trattata. Il laboratorio è diviso nel centro da un colonnato ed è alto 4,30 metri. Attualmente è diviso in tre spazi, quello più grande, il laboratorio dove era installata la manovia, l’aggiunteria ed il magazzino. Tutti gli ambienti sono climatizzati caldo/freddo e la potenza energetica è di 70 KW. Il capannone è in ottimo stato di manutenzione, sia internamente che esternamente ad eccezione delle parti al grezzo che sono da finire ma non trascurate. La superficie totale è di circa 1.500 metri quadri di cui 140 al grezzo da rifinire solo internamente e 360 presentano solo la struttura esterna, sono da rifinire sia esternamente che internamente. Il capannone è situato di fronte ad un parcheggio pubblico che può accogliere numerose vetture ed il resede interno ed esclusivo, interamente recintato ha cancelli carrabili anche per TIR. Stabbia è una delle zone industriali di Cerreto Guidi, centrale in Toscana ai confini con la provincia di Pistoia ed a 15 minuti dalle entrate di San Miniato sulla Firenze-Pisa-Livorno e quella di Montecatini Terme sulla A11 Firenze-Mare. Presenta molte realtà importanti sia nel settore calzaturiero che dell’arredamento di interni. E’ poi vicina qualche minuto alle zone industriali di Empoli, Fucecchio e del Comprensorio del Cuoio e di San Miniato. La soluzione è interessante per l’ottimo stato di manutenzione dell’immobile e per la possibilità di ampliamento dagli attuali 1.000 metri quadri fino ai 1.500 metri quadri totali della struttura. L’Agenzia Immobiliare Sgherri è a disposizione al n. 335 875 8076 per ulteriori informazioni o per visite.

Condizioni economiche

Contratto: Vendita
Prezzo: 1'050'000€
Spese condominiali: Nessuna spesa condominiale

Informazioni principali

Tipologia: Capannone
Città: Cerreto Guidi
Zona: Stabbia
Superficie: 1591 m²
N° locali: 6

Efficenza energetica

Classe energetica: In attesa di certificazione
Ristrutturato: si

Caratteristiche

Ascensore: si

Dati inserzione

ID Offrocasa.com: 10582985
Data inserimento: 31/10/2024
Rif. Agenzia: 1289105/1962/S02-1202
Rif. Agenzia 1289105/1962/S02-1202

Sgherri Immobiliare

Corso Corso Matteotti,, 61 - Fucecchio (Firenze)
05711961207
Richiedi Info dal form:
Accetto l'Informativa Privacy


Sgherri Immobiliare

Corso Corso Matteotti,, 61 - Fucecchio (Firenze)

Capannone in Vendita a Cerreto Guidi, zona Stabbia, 1'050'000€, 1591 m²

Chiama
Contatta