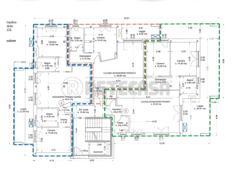
Trilocale in Vendita a Crema, 360'000€, 132 m², con Box

Locali: 3
Camere: 2
Piano: t
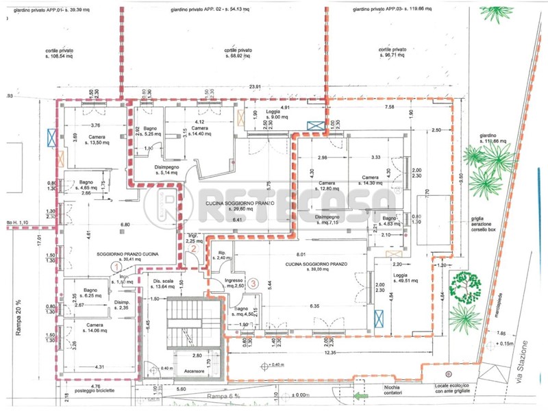
CREMA CENTRO IMPERDIBILE!!!! NUOVA COSTRUZIONE IN CLASSE A POSIZIONE CENTRALISSIMA, a due passi da Piazza Garibaldi, proponiamo PALAZZINA DI NUOVA COSTRUZIONE costituita da 11 unità immobiliari, ognuna dotata di box (singolo o doppio) Al piano terra, disponibili n. 2 TRILOCALI CON AMPIO GIARDINO PRIVATO e così composti: salone suddiviso in zona living e zona pranzo con cucina a vista, camera matrimoniale, camera singola comoda, due bagni e giardino/cortile privato ad angolo. Le abitazioni sono servite da ascensore, le finiture interne sono a scelta dell'acquirente da capitolato di ottima qualità. La costruzione prevede: impianto di riscaldamento a pavimento in pompa di calore, cappotto esterno da 15 cm, serramenti esterni in legno con tripli vetri basso emissivi, sistema di ventilazione meccanica, predisposizione A/C, zanzariere, tapparelle elettriche e impianto fotovoltaico. La consegna è prevista per FINE 2024 Prezzi a partire da 360.000 €. TI ASPETTIAMO IN UFFICIO PER PRENOTARE LA TUA CASA DEL FUTURO!!! Classe A3 Alcuni dati descrittivi dell'immobile potrebbero essere solo approssimativi (es: spese di riscaldamento, spese condominiali e divisione superfici) e pertanto verranno forniti in modo completo solo telefonicamente oppure in fase di appuntamento. SI PRECISA che l'indirizzo pubblicato INDICA SOLO LA ZONA E/O LA DIREZIONE di ubicazione dell'immobile. Dettagli più precisi verranno forniti solo con contatto telefonico. Per maggiori informazioni o visite contattare senza impegno i numeri 0373/1996506 o 329/6772411. Se preferite, VENITE A CONOSCERCI DI PERSONA, ci trovate a Crema in Viale De Gasperi n. 25.

Condizioni economiche

Contratto: Vendita
Prezzo: 360'000€
Arredato: No

Informazioni principali

Tipologia: Trilocale
Città: Crema
Vicinanze: Centrale
Superficie: 132 m²
N° locali: 3
N° Camere: 2
Piano: t
Box: Si
Cucina: Angolo cottura
Giardino: Si

Efficenza energetica

Classe energetica: A3
Anno di costruzione: 2024
Condizioni stabile: Nuovo
Riscaldamento: Autonomo

Caratteristiche

Ascensore: Si

Dati inserzione

ID Offrocasa.com: 10579471
Data inserimento: 25/10/2024
Rif. Agenzia: CREMA307triloterra
Rif. Agenzia CREMA307triloterra

Beni Immobili Srl

Viale De Gasperi 25 - Crema (Cremona)
Richiedi Info dal form:
Accetto l'Informativa Privacy


Beni Immobili Srl

Viale De Gasperi 25 - Crema (Cremona)

Trilocale in Vendita a Crema, 360'000€, 132 m², con Box

Contatta