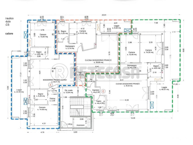
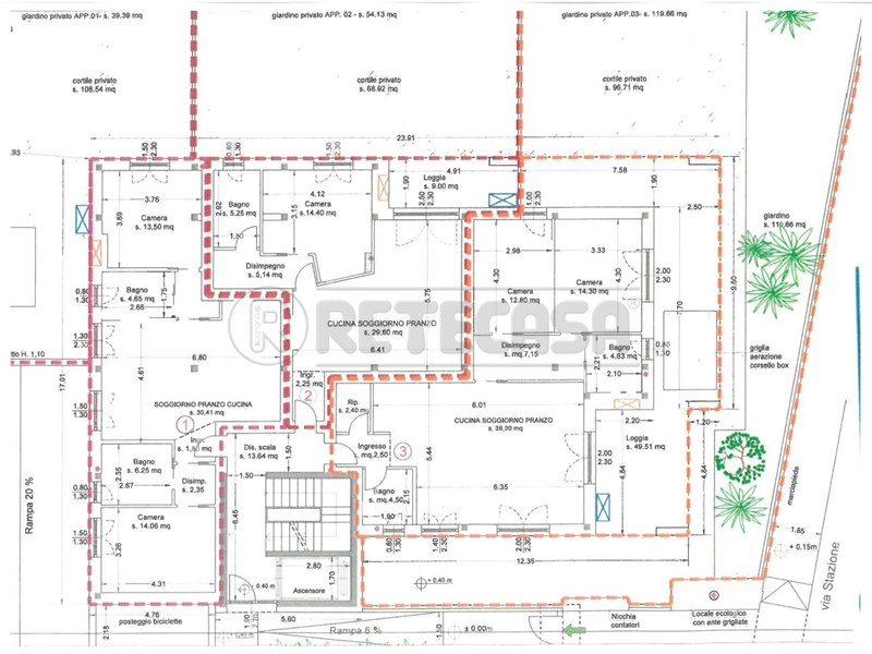
Bilocale in Vendita a Crema, 270'000€, 103 m², con Box

Locali: 2
Camere: 1
Piano: t
CREMA CENTRO IMPERDIBILE!!!! NUOVA COSTRUZIONE IN CLASSE A POSIZIONE CENTRALISSIMA, a due passi da Piazza Garibaldi, proponiamo PALAZZINA DI NUOVA COSTRUZIONE costituita da 12 unità immobiliari, ognuna dotata di box (singoli o doppi) Ai piani terra e primo disponibili n. 2 BILOCALI così composti: ingresso, ampio soggiorno con angolo cottura, disimpegno, camera matrimoniale e bagno. Il bilocale al piano terra gode di un bel GIARDINO PRIVATO, in parte pavimentato, quello al piano primo di una bella LOGGIA sulla zona giorno attrezzabile per pranzi e cene all'aperto. Le abitazioni sono servite da ascensore, le finiture interne sono a scelta dell'acquirente da capitolato di ottima qualità. La costruzione prevede: impianto di riscaldamento a pavimento in pompa di calore, cappotto esterno da 15 cm, serramenti esterni in legno con tripli vetri basso emissivi, sistema di ventilazione meccanica, predisposizione A/C, zanzariere, tapparelle elettriche e impianto fotovoltaico. La consegna è prevista per FINE 2024 Prezzi: piano terra € 287.000, piano primo € 270.000 TI ASPETTIAMO IN UFFICIO PER PRENOTARE LA TUA CASA DEL FUTURO!!! Classe A3 Alcuni dati descrittivi dell'immobile potrebbero essere solo approssimativi (es: spese di riscaldamento, spese condominiali e divisione superfici) e pertanto verranno forniti in modo completo solo telefonicamente oppure in fase di appuntamento. SI PRECISA che l'indirizzo pubblicato INDICA SOLO LA ZONA E/O LA DIREZIONE di ubicazione dell'immobile. Dettagli più precisi verranno forniti solo con contatto telefonico. Per maggiori informazioni o visite contattare senza impegno i numeri 0373/1996506 o 329/6772411. Se preferite, VENITE A CONOSCERCI DI PERSONA, ci trovate a Crema in Viale De Gasperi n. 25.

Condizioni economiche

Contratto: Vendita
Prezzo: 270'000€
Arredato: No

Informazioni principali

Tipologia: Bilocale
Città: Crema
Vicinanze: Centrale
Superficie: 103 m²
N° locali: 2
N° Camere: 1
Piano: t
Box: Si
Cucina: Angolo cottura
Giardino: Si

Efficenza energetica

Classe energetica: A3
Anno di costruzione: 2024
Condizioni stabile: Nuovo
Riscaldamento: Autonomo

Caratteristiche

Ascensore: Si

Dati inserzione

ID Offrocasa.com: 10579470
Data inserimento: 25/10/2024
Rif. Agenzia: CREMA307bilo
Rif. Agenzia CREMA307bilo

Beni Immobili Srl

Viale De Gasperi 25 - Crema (Cremona)
Richiedi Info dal form:
Accetto l'Informativa Privacy


Beni Immobili Srl

Viale De Gasperi 25 - Crema (Cremona)

Bilocale in Vendita a Crema, 270'000€, 103 m², con Box

Contatta