Villa in Vendita a L'Aquila, 299'000€, 300 m², arredato

Locali: 8
Bagni: 3
Camere: 6
Piano: Su più livelli
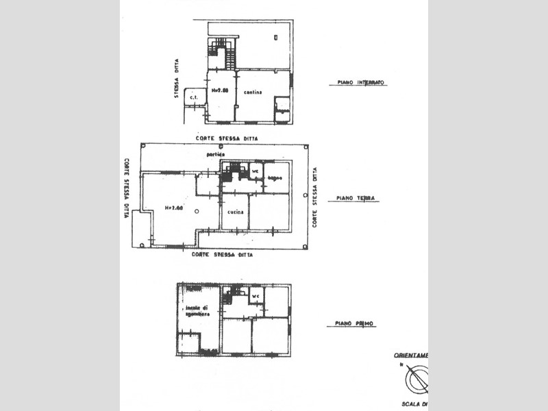
Nel caratteristico comune di Poggio Picenze a 15 Km dalla città dell'Aquila proponiamo in vendita villa singola di mq 300 mq ca con ampio spazio esterno di oltre 600 mq ca. Sita in zona residenziale si sviluppa su tre livelli ed è così composta. Nel piano S1 ampia taverna con camino funzionante, bagno di servizio, ed ulteriore tre ambienti/stanze. Al piano di ingresso accediamo nell'ampio salone che ci da l'accesso all'ampio porticato ed al giardino circostante; proseguendo abbiamo la cucina abitabile, la camera da letto matrimoniale ed il bagno finestrato. Al piano superiore due camere da letto matrimoniali, una camera singola ed un ulteriore bagno. La struttura e stata realizzata a metà degli anni novanta e presenta infissi in legno doppio vetro restaurati. Attualmente si trova in buono stato di manutenzione e potrebbe essere immediatamente abitata. Se anche tu devi vendere la tua casa, per riacquistare un altro immobile, non esitare a contattarci per richiedere gratuitamente una valutazione da parte dei nostri esperti.

Condizioni economiche

Contratto: Vendita
Prezzo: 299'000€
Arredato: Si
Libero: Si

Informazioni principali

Tipologia: Villa
Città: L'Aquila
Superficie: 300 m²
N° locali: 8
N° bagni: 3
N° Camere: 6
Piano: Su più livelli
Cucina: Abitabile

Efficenza energetica

Classe energetica:
Anno di costruzione: 1994
Riscaldamento: autonomo

Caratteristiche

Cantina: Si

Dati inserzione

ID Offrocasa.com: 10579328
Data inserimento: 25/10/2024
Rif. Agenzia: es12VRG
Rif. Agenzia es12VRG

Gabetti

Via Giuseppe Verdi 10 - L'Aquila
0862414223
Richiedi Info dal form:
Accetto l'Informativa Privacy


Gabetti

Via Giuseppe Verdi 10 - L'Aquila

Villa in Vendita a L'Aquila, 299'000€, 300 m², arredato

Chiama
Contatta