Attico in Vendita a Forte dei Marmi, 450'000€, 60 m², arredato

Locali: 3
Bagni: 1
Camere: 1
Piano: 2°
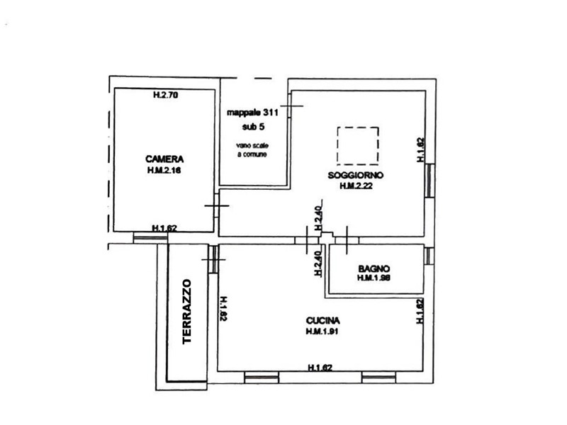
Forte dei Marmi a soli 300 metri dalle spiagge, Appartamento al Secondo Piano Mansardato, composto da: Soggiorno, Cucina Abitabile, Camera Matrimoniale e Bagno Finestrato con Box Doccia. Giardino Privato. L'immobile è accatastato con C2.

Condizioni economiche

Contratto: Vendita
Prezzo: 450'000€
Arredato: si

Informazioni principali

Tipologia: Attico
Città: Forte dei Marmi
Superficie: 60 m²
N° locali: 3
N° bagni: 1
N° Camere: 1
Piano:
Giardino: privato

Efficenza energetica

Classe energetica: E
Ristrutturato: si

Dati inserzione

ID Offrocasa.com: 10573986
Data inserimento: 18/10/2024
Rif. Agenzia: 1289404/1524/3230
Rif. Agenzia 1289404/1524/3230

KM Immobiliare

Viale Viale Roma,, 282 - Massa (Massa Carrara)
3737637560
Richiedi Info dal form:
Accetto l'Informativa Privacy


KM Immobiliare

Viale Viale Roma,, 282 - Massa (Massa Carrara)

Attico in Vendita a Forte dei Marmi, 450'000€, 60 m², arredato

Chiama
Contatta