Ufficio in Vendita a Siena, zona Due Ponti, 300'000€, 120 m²

Locali: 4
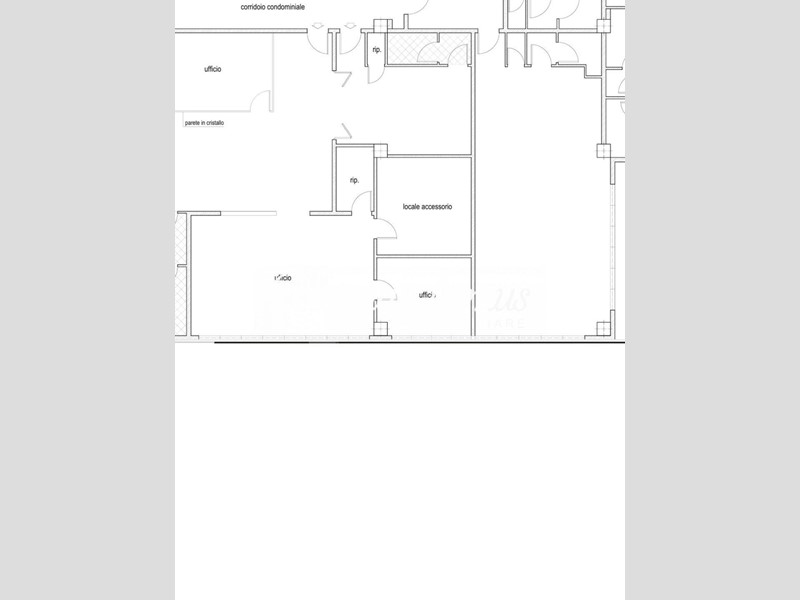
Vendesi in Viale Europa zona Due Ponti due immobili di diverse proprietà, attualmente uniti in un unico ufficio. Nonostante l'ambiente creato sia molto vasto le due unità hanno ingressi, utenze e servizi separati. Quello principale è composto da due ampi locali, uno con bagno e l'altro con ripostiglio, un ufficio molto luminoso ed una grande sala riunioni completamente finestrata. Il secondo immobile è composto da un grandissimo open space completamente finestrato diviso internamente da una struttura in vetro. Anche questo completo di bagno con doccia. Si presentano entrambi in ottimo stato, gli impianti sono a norma. Ampio parcheggio. La richiesta per il primo immobile è di euro 3000000. Per il secondo la richiesta è inferiore ma da concordare personalmente.

Condizioni economiche

Contratto: Vendita
Prezzo: 300'000€

Informazioni principali

Tipologia: Ufficio
Città: Siena
Zona: Due Ponti
Superficie: 120 m²
N° locali: 4

Efficenza energetica

Classe energetica: F
Ipe: 200,00 kwm2
Ristrutturato: si

Dati inserzione

ID Offrocasa.com: 10573095
Data inserimento: 17/10/2024
Rif. Agenzia: 1289378/1170/V955
Rif. Agenzia 1289378/1170/V955

TOSCANA DOMUS Immobiliare

Viale Viale Cavour,, 94 - Siena
0577058145
Richiedi Info dal form:
Accetto l'Informativa Privacy


TOSCANA DOMUS Immobiliare

Viale Viale Cavour,, 94 - Siena

Ufficio in Vendita a Siena, zona Due Ponti, 300'000€, 120 m²

Chiama
Contatta