Appartamento in Vendita a Arce, 149'000€, 85 m², con Box

Locali: 5
Camere: 2
Piano: 3
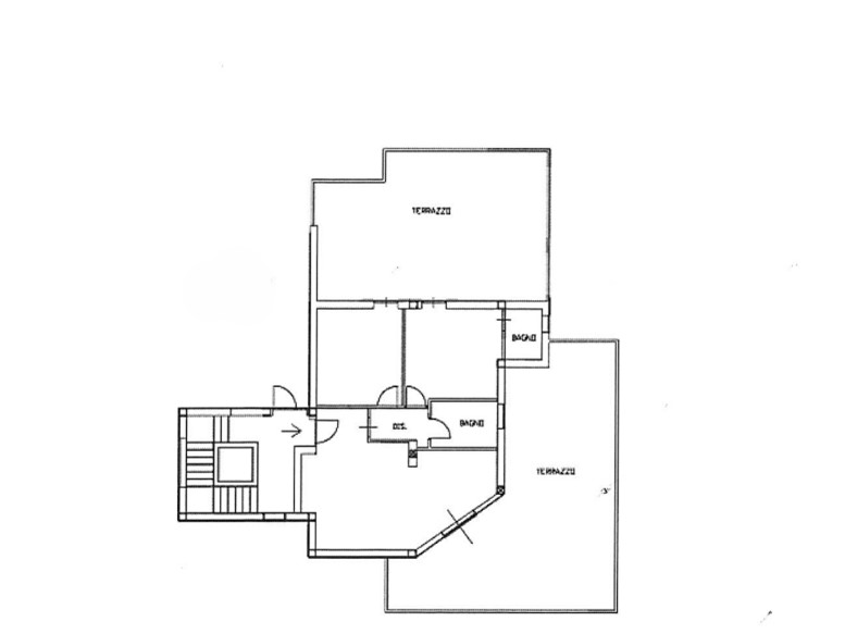
POSIZIONE Arce, Via Stazione, in contesto residenziale, A ridosso della stazione ferroviaria ed a due passi dal centro del paese. DESCRIZIONE Appartamento di c.a. 85 mq, posto al terzo ed ultimo piano, con ascensore, composto da salone con angolo cottura, due camere da letto, disimpegno e due bagni, oltre due ampi terrazzi, a servizio sia della zona giorno, che della zona notte. Completa la proprietà un garage di c.a. 20 mq posto al piano seminterrato. STATO E FINITURE La palazzina ove è ubicata l'unità abitativa è di recente costruzione, edificata nel 2010. SPAZI ESTERNI L'ampio terrazzo a servizio della zona giorno è ideale per viverlo con la propria famiglia ed amici. UTILIZZO E POTENZIALITA' In relazione alla metratura abitativa, agli spazi esterni ed agli accessori (garage), la proprietà risulta completa a 360°, in grado di soddisfare tutte le esigenze abitative di un nucleo familiare. Paghi l’affitto, oppure compri casa? Cogli l’occasione, compra casa! IPOTESI RATA DI MUTUO (80% del prezzo di vendita) MENSILE € 480,00 circa * Le presenti informazioni non costituiscono elemento contrattuale, dovranno essere verificate in ogni caso. Per tutte le soluzioni in vendita, potete visitare il nostro sito www.gruppoempireimmobiliare.it

Condizioni economiche

Contratto: Vendita
Prezzo: 149'000€
Arredato: No

Informazioni principali

Tipologia: Appartamento
Città: Arce
Superficie: 85 m²
N° locali: 5
N° Camere: 2
Piano: 3
Box: Si
Cucina: Angolo cottura

Efficenza energetica

Classe energetica: G
Ipe: 268 KWh/m2a
Anno di costruzione: 0
Condizioni stabile: Buono

Caratteristiche

Ascensore: Si

Dati inserzione

ID Offrocasa.com: 10572347
Data inserimento: 16/10/2024
Rif. Agenzia: 200-266
Rif. Agenzia 200-266

Gruppo Empire Italia srl

Via Giovanni Giminiani 17/O - Anagni (Frosinone)
Richiedi Info dal form:
Accetto l'Informativa Privacy


Gruppo Empire Italia srl

Via Giovanni Giminiani 17/O - Anagni (Frosinone)

Appartamento in Vendita a Arce, 149'000€, 85 m², con Box

Contatta