Capannone in Affitto a Arcole, 9'000€, 2050 m²

Locali: 3
Piano: t
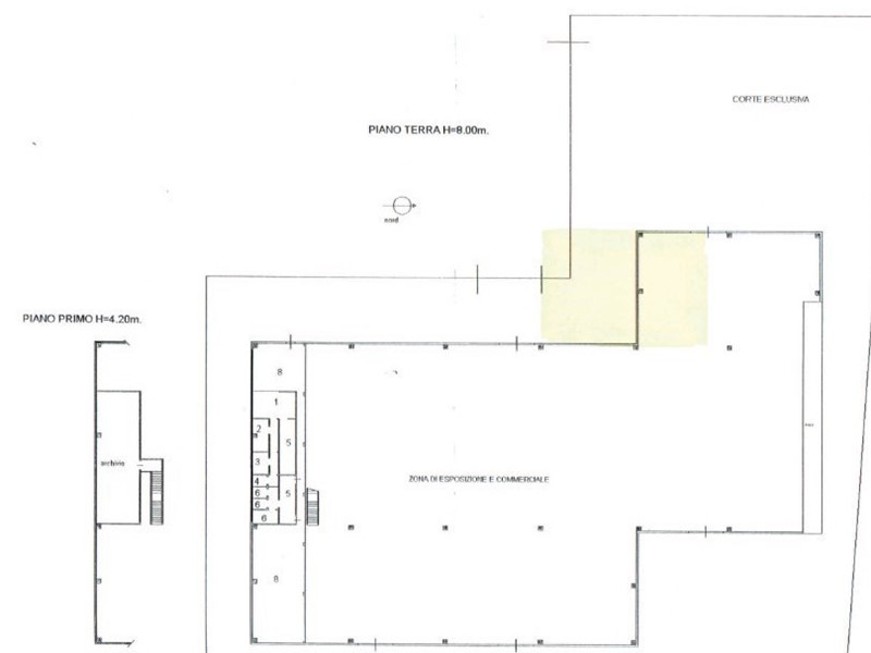
ARCOLE: proponiamo su lotto di 7.250mq asfaltato ed indipendente, capannone ad uso commerciale, di 2.050mq altezza 8,00m con predisposizione carroponte, completo di riscaldamento, oltre a corpo uffici di 100mq. Il gruppo che gestisce l'agenzia MyHome Immobiliare opera ormai da diversi anni sulle province di Vicenza e di Verona. Grazie alla nostra esperienza e preparazione siamo in grado di fornire servizi immobiliari a 360°. Il nostro team crede fortemente nell’etica professionale, e il nostro obbiettivo è quello di soddisfare le esigenze immobiliari con affidabilità, trasparenza e serietà. Sei alla ricerca della tua nuova casa o vuoi vendere la tua abitazione? Rivolgiti al nostro team di esperti. Ti aspettiamo nelle nostri sedi ad Arzignano (VI) in Via Trieste 20 e a San Bonifacio (VR) in Piazza Costituzione 31.

Condizioni economiche

Contratto: Affitto
Prezzo: 9'000€
Arredato: No

Informazioni principali

Tipologia: Capannone
Città: Arcole
Superficie: 2050 m²
N° locali: 3
Piano: t
Posto auto: Si

Efficenza energetica

Classe energetica: VA
Anno di costruzione: 2003

Dati inserzione

ID Offrocasa.com: 10570708
Data inserimento: 15/10/2024
Rif. Agenzia: AA017
Rif. Agenzia AA017

MyHome Immobiliare

Corso Giacomo Matteotti, 67/2 - Arzignano (VI)
0444.1322263
Richiedi Info dal form:
Accetto l'Informativa Privacy


MyHome Immobiliare

Corso Giacomo Matteotti, 67/2 - Arzignano (VI)

Capannone in Affitto a Arcole, 9'000€, 2050 m²

Chiama
Contatta