Villa in Vendita a Venezia, 465'000€, 160 m²

Locali: 5
Bagni: 2
Camere: 4
Piano: Su più livelli
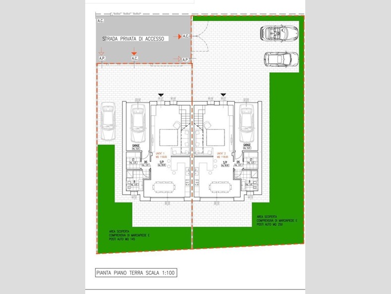
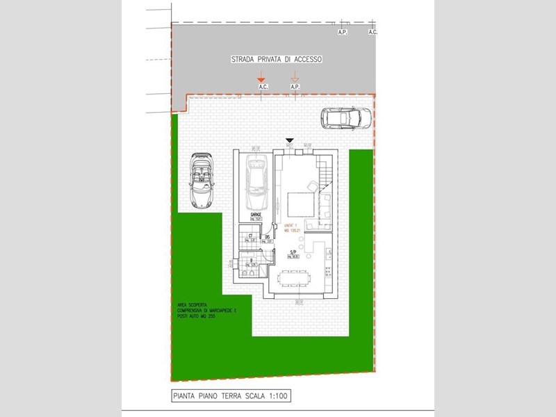
ZELARINO: Proponiamo in vendita una costruzione unica nel suo genere. In posizione defilata dal traffico ma comoda per raggiungere il centro di Zelarino, sorgerà una nuova costruzione composta da una bivilla ed una villa singola. Le dimensioni saranno tutte generose con un'ampia zona giorno al piano terra divisibile in soggiorno e cucina, servizio lavanderia ed al piano primo 4 camere da letto ed un altro servizio. Sempre al piano terra sarà presente sia il garage che il posto auto così come un bellissimo giardino privato. Tutte le finiture sono personalizzabili e a livello tecnologico saranno utilizzate tutte le ultime novità riguardanti il risparmio energetico come i pannelli solari fotovoltaici e predisposizione per batteria di accumulo e la caldaia in pompa di calore che assicura un sistema di ultima generazione al passo con le recenti norme in materia di transizione ecologica. Ovviamente tutti gli edifici saranno in classe energetica A4. Non perdere tempo, prendi un appuntamento per visionare i progetti e il capitolato! L'agenzia Gabetti, presente da anni sul territorio, offre ai suoi clienti servizi di intermediazione immobiliare e servizi tecnici legati al settore immobiliare. La nostra agenzia si posiziona nel mercato come punto di riferimento per chi per chi deve vendere, acquistare o affittare un immobile residenziale, grazie alla vastissima offerta e agli strumenti in grado di rendere il processo di compravendita ancor più celere e sicuro. Gabetti è Marchio storico d'interesse nazionale, un riconoscimento del Ministero dello Sviluppo Economico, riservato alle aziende italiane che hanno fatto e continuano a fare la "storia" dell'imprenditoria nazionale.

Condizioni economiche

Contratto: Vendita
Prezzo: 465'000€
Arredato: No
Libero: Si

Informazioni principali

Tipologia: Villa
Città: Venezia
Superficie: 160 m²
N° locali: 5
N° bagni: 2
N° Camere: 4
Piano: Su più livelli
Box: Singolo
Cucina: Abitabile
Giardino: Privato

Efficenza energetica

Classe energetica: 2015-A4
Ipe: 12.00 kwm2
Climatizzatore: Si
Anno di costruzione: 2023
Riscaldamento: autonomo

Caratteristiche

Cantina: Si
Videocitofono: Si

Dati inserzione

ID Offrocasa.com: 10568864
Data inserimento: 12/10/2024
Rif. Agenzia: 31A/PC24VRG
Rif. Agenzia 31A/PC24VRG

Gabetti

Viale Giuseppe Garibaldi 59/d - Venezia
041.5352543
Richiedi Info dal form:
Accetto l'Informativa Privacy


Gabetti

Viale Giuseppe Garibaldi 59/d - Venezia

Villa in Vendita a Venezia, 465'000€, 160 m²

Chiama
Contatta