Immobile commerciale in Affitto a Roma, 2'900€, 225 m², con Box

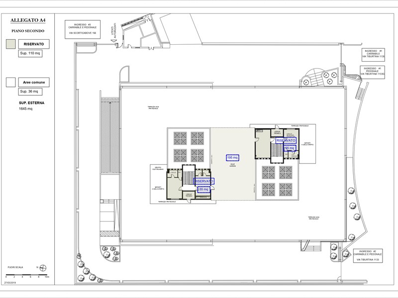
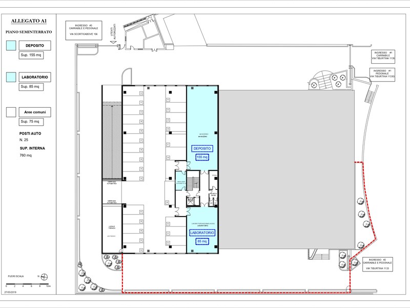
CENTRO DIREZIONALE AZZURRA IMMOBILE POLIFUNZIONALE VIA TIBURTINA 1135 LOCAZIONE DI PREGIO IN ROMA Proponiamo in locazione il complesso, sito in Roma Via Tiburtina fronte strada all’interno del GRA, l’intero complesso insiste su un lotto indipendente, la costruzione si sviluppa su tre livelli fuori terra ed uno interrato, all’interno del quale sono presenti 85 posti auto, con una superfice coperta di mq 5000 c.a. in un contesto urbano riconosciuto come di alto prestigio. Il complesso si presenta con una architettura moderna e funzionale, pronto per l’utilizzo immediato di spazi flessibili, quali ambienti di lavoro con ottime rifiniture, aree uffici, laboratori, magazzini, sale didattiche, posti auto coperti e scoperti, servizi, completa la struttura un delizioso Roof Garden. Il complesso si compone di comparti autonomi con superfici da 200 mq a 1800 mq interconnessi tra loro, due corpi scale due ascensori, con più accessi per i vari comparti, l’accesso all’area esterna è garantita da tre passi carraie tre passa uomo, una reception a disposizione dei vari comparti L'immobile è completo di impiantistica elettrica, dotato di cabina elettrica, sistemi di sicurezza e TVCC controllo accessi, rilevazione incendi, rete dati cablata in ogni locale ed impianti di climatizzazione indipendente per comparti, servito da più operatori telefonici con fibra ottica diretta. Accatastato A/10, Classe energetica C L’immobile è posizionato in Prime Location, in zona ben servita e molto esclusiva, gode di una posizione strategica nella città, in quanto sito a cinque minuti dalla metropolitana Rebibbia, oltre a fermate per il trasporto pubblico avanti l’immobile, collegata con GRA e autostrade per tutte le direzioni, la Via Tiburtina è stata totalmente riqualificata, migliorando la viabilità e attirando marchi prestigiosi. Telefonare dalle 9 alle 13

Condizioni economiche

Contratto: Affitto
Prezzo: 2'900€

Informazioni principali

Tipologia: Immobile commerciale
Città: Roma
Superficie: 225 m²
Box: SI
Posto auto: SI

Efficenza energetica

Classe energetica: C
Ipe: -
Climatizzatore: AUTONOMO
Ristrutturato: RISTRUTTURATO
Riscaldamento: AUTONOMO

Caratteristiche

Ascensore: 2
Cancello elettrico: CANCELLO ELETTRICO

Dati inserzione

ID Offrocasa.com: 10563179
Data inserimento: 07/10/2024

IMMOBILIARE AZZURRA 2004 SRL

3474516214
Richiedi Info dal form:
Accetto l'Informativa Privacy


IMMOBILIARE AZZURRA 2004 SRL

Immobile commerciale in Affitto a Roma, 2'900€, 225 m², con Box

Chiama
Contatta