Villa bifamiliare in Vendita a Cecina, 350'000€, 110 m²
        
    
        
    
        
    
    
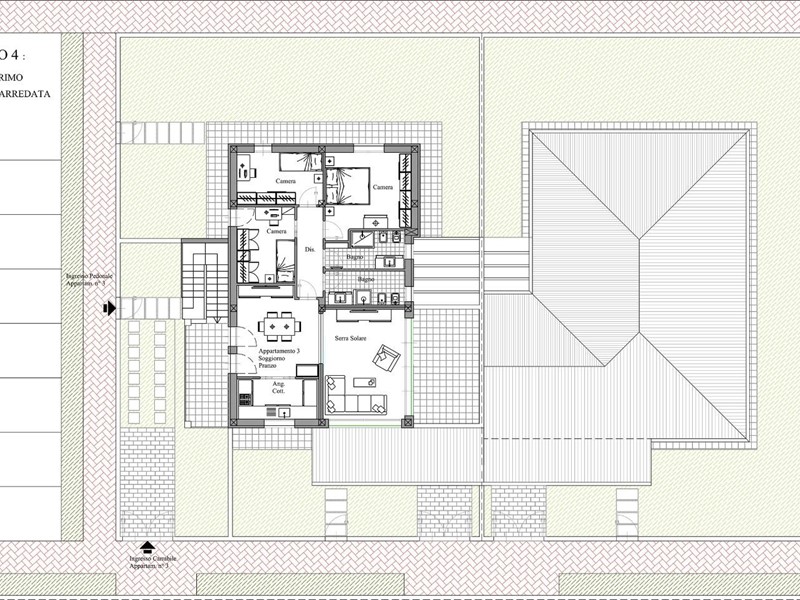
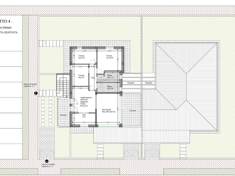
        Cecina : in Villetta Trifamiliare di nuova costruzione, ubicata in zona residenziale con ampi spazi verdi, piste ciclabili e parcheggi, vicinanza a tutti i servizi, si vendono 3 disposti al piano terreno, piano primo e Villetta al piano terreno libera su tre lati. Gli appartamenti sono tutti disponibili. Qui vi  proponiamo la soluzione al piano primo. Appartamento indipendente di circa 110 mq. Si accede  dal giardino di circa 50mq, tramite scala esterna e a mezzo della terrazza  si entra nella zona giorno, dove troviamo l' angolo cottura e la serra solare di circa 25mq,  dalla quale si  accede alla seconda terrazza di circa 15 mq. La zona notte è composta da camera matrimoniale e due camere singole, oltre a due bagni. Dal giardino  si accede ai 2 posti auto e al locale tecnico/ripostiglio di circa 9 mq. Il fabbricato, avrà un ottimo capitolato e sarà realizzato secondo le normative di legge per poter raggiungere la massima classe Energetica. Casse energetica: A4 - Rif. 76
	
    
    
    
        
        
            Condizioni economiche
            
                Contratto: Vendita
            
            
                Prezzo: 350'000€
            
            
         
        
            Informazioni principali
            
                Tipologia: Villa bifamiliare
            
            
                Città: Cecina
            
            
                
                    Superficie: 110 m²
                
            
                
                    N° locali: 5
                
            
                
                    N° bagni: 2
                
            
                
                    N° Camere: 3
                
            
                
                    Posto auto: 1
                
            
                
                    Giardino: privato
                
            
         
        
            Efficenza energetica
            
                Classe energetica: A4
            
            
		 
        
            
                Dati inserzione
                
                    ID Offrocasa.com: 10556938
                
                
                
                    Data inserimento: 28/09/2024
                
                
                    
                        Rif. Agenzia: 1286620/216/76
                    
                
             
        
	 
    
    
        
Villa bifamiliare in Vendita a Cecina, 350'000€, 110 m²