Bilocale in Vendita a Monte Argentario, zona Porto Ercole, 180'000€, 45 m²

Locali: 2
Camere: 1
Piano: t
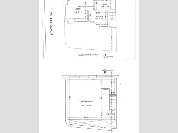
A Porto Ercole, in una posizione privilegiata vicino all'ingresso di Villa Consani, proponiamo un bilocale su due livelli con ingresso indipendente, perfetto per chi desidera una soluzione pratica e accogliente nel cuore dell'Argentario. Al piano terra troviamo un ingresso con disimpegno, una cameretta con letto e un bagno, ideali per garantire privacy e comfort. Il livello superiore ospita un luminoso soggiorno con angolo cottura, che crea uno spazio conviviale e funzionale per momenti di relax e condivisione. Ideale come punto d’appoggio per una coppia, l'immobile è perfetto per godersi Porto Ercole in qualsiasi stagione. Ottima opportunità per vivere l'incanto dell'Argentario tutto l'anno!

Condizioni economiche

Contratto: Vendita
Prezzo: 180'000€
Arredato: No
Spese condominiali: 100€

Informazioni principali

Tipologia: Bilocale
Città: Monte Argentario
Zona: Porto Ercole
Vicinanze: Centrale
Superficie: 45 m²
N° locali: 2
N° Camere: 1
Piano: t
Cucina: Angolo cottura

Efficenza energetica

Classe energetica: VA
Anno di costruzione: 0

Dati inserzione

ID Offrocasa.com: 10556671
Data inserimento: 27/09/2024
Rif. Agenzia: CBI008-19-51
Rif. Agenzia CBI008-19-51

Casaba Group International Realty

Via della Marina 6/8 - Monte Argentario (Grosseto)
0564.830006
Richiedi Info dal form:
Accetto l'Informativa Privacy


Casaba Group International Realty

Via della Marina 6/8 - Monte Argentario (Grosseto)

Bilocale in Vendita a Monte Argentario, zona Porto Ercole, 180'000€, 45 m²

Chiama
Contatta