Villa in Vendita a Capannori, zona Lunata, 595'000€, 190 m²
        
    
        
    
        
    
    
        **Villa Moderna in Vendita a Lunata, Capannori**
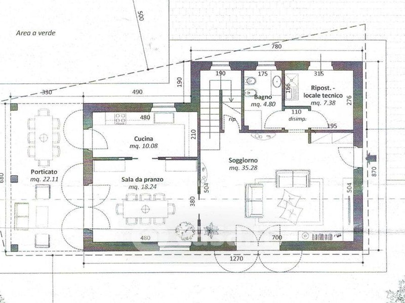
Scopri questa splendida villa singola di nuova costruzione situata nella tranquilla e riservata zona est di Lucca, a Lunata, Capannori. Immersa in un contesto di ville, questa proprietà offre una superficie totale di 190 mq distribuiti su due piani. Al piano terra troverai un ampio soggiorno, una sala pranzo, una cucina moderna, un bagno, una lavanderia e un ripostiglio. 
Al primo piano, la villa dispone di tre spaziose camere matrimoniali, ciascuna con il proprio bagno privato, garantendo il massimo comfort e privacy. La soffitta, accessibile tramite una botola, offre ulteriore spazio per riporre oggetti. Il giardino privato recintato su quattro lati di 400 mq è perfetto per godersi momenti all'aria aperta in totale tranquillità.
La villa è dotata di riscaldamento a pavimento con pompe di calore e impianto fotovoltaico, garantendo un'efficienza energetica eccellente con classe energetica A/4. Gli infissi con vetrocamera assicurano un ottimo isolamento termico e acustico. Completano la proprietà una terrazza e un balcone, ideali per rilassarsi e ammirare il panorama circostante.
Non perdere l'opportunità di vivere in una casa moderna e confortevole in una delle zone più esclusive di Capannori. Contattaci per maggiori informazioni e per prenotare una visita!
	
    
    
    
        
        
            Condizioni economiche
            
                Contratto: Vendita
            
            
                Prezzo: 595'000€
            
            
         
        
            Informazioni principali
            
                Tipologia: Villa
            
            
                Città: Capannori
            
            
                
                    Zona: Lunata
                
            
                
                    Superficie: 190 m²
                
            
                
                    N° locali: 9
                
            
                
                    N° bagni: 3
                
            
                
                    N° Camere: 3
                
            
                
                    Piano: piano terra
                
            
                
                    Posto auto: 3
                
            
                
                    Giardino: privato
                
            
         
        
            Efficenza energetica
            
                Classe energetica: A4
            
            
                
                    Ipe: 20,10 kwm2
                
            
                
                    Anno di costruzione: 2024
                
            
		 
        
                
                    Caratteristiche
                    
                        
                            Videocitofono: si
                        
                    
                 
            
            
                Dati inserzione
                
                    ID Offrocasa.com: 10541388
                
                
                
                    Data inserimento: 08/09/2024
                
                
                    
                        Rif. Agenzia: 1283256/1267/4817
                    
                
             
        
	 
    
    
        
Villa in Vendita a Capannori, zona Lunata, 595'000€, 190 m²