Appartamento in Vendita a Agrigento, 80'000€, 205 m²

Locali: 5
Bagni: 2
Camere: 4
Piano: 5°
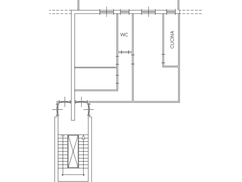
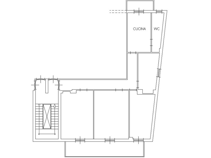
Nella parte centrale della Via Imera vendiamo ampio appartamento attualmente diviso in due unità. Intero quinto piano con due ingressi separati. Gli appartamenti sono così composti: il bilocale ha un ingresso, cucinino, soggiorno, camera bagno e ripostiglio. Il quadrilocale ha un ingresso, salone, cucina, tre camere e bagno. Ampi balconi che danno sula via principale. L'immobile richiede una ristrutturazione. Possibilità di acquistarli separatamente.

Condizioni economiche

Contratto: Vendita
Prezzo: 80'000€
Arredato: No
Spese condominiali: 50€
Libero: Si

Informazioni principali

Tipologia: Appartamento
Città: Agrigento
Superficie: 205 m²
N° locali: 5
N° bagni: 2
N° Camere: 4
Piano:
Cucina: Abitabile

Efficenza energetica

Classe energetica: 2015-G
Ipe: 142.00 kwm2
Anno di costruzione: 1966

Caratteristiche

Ascensore: Si

Dati inserzione

ID Offrocasa.com: 10537946
Data inserimento: 04/09/2024
Rif. Agenzia: Ag846VRG
Rif. Agenzia Ag846VRG

Gabetti

via San Vito 24 - Agrigento
0922/556187
Richiedi Info dal form:
Accetto l'Informativa Privacy


Gabetti

via San Vito 24 - Agrigento

Appartamento in Vendita a Agrigento, 80'000€, 205 m²

Chiama
Contatta