Trilocale in Vendita a Santo Stefano di Magra, 85'000€, 50 m²
        
    
        
    
        
    
    
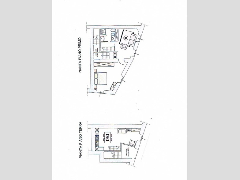
        Santo Stefano Magra, a pochi passi dal centro storico, con comodo accesso anche carraio, appartamento in palazzina di due unità abitative completamente ristrutturato sia internamente che esternamente. L’appartamento disposto su due livelli è composto da ingresso nel  soggiorno/cucina con camino, ripostiglio, scala in legno  che porta al piano sovrastante con soggiorno/camera/studio, bagno con doccia e camera matrimoniale. Riscaldamento autonomo, no spese condominiali, impianti nuovi.
	
    
    
    
        
        
            Condizioni economiche
            
                Contratto: Vendita
            
            
                Prezzo: 85'000€
            
            
         
        
            Informazioni principali
            
                Tipologia: Trilocale
            
            
                Città: Santo Stefano di Magra
            
            
                
                    Superficie: 50 m²
                
            
                
                    N° locali: 3
                
            
                
                    N° bagni: 1
                
            
                
                    N° Camere: 1
                
            
                
                    Piano: su più livelli
                
            
         
        
            Efficenza energetica
            
                Classe energetica: G
            
            
                
                    Anno di costruzione: 1960
                
            
                
                    Ristrutturato: no
                
            
		 
        
            
                Dati inserzione
                
                    ID Offrocasa.com: 10530030
                
                
                
                    Data inserimento: 21/08/2024
                
                
                    
                        Rif. Agenzia: 1239557/1682/22773
                    
                
             
        
	 
    
    
        
Trilocale in Vendita a Santo Stefano di Magra, 85'000€, 50 m²