Villetta a schiera in Vendita a Castelnuovo Magra, zona Palvotrisia, 350'000€, 147 m², arredato

Locali: 8
Bagni: 3
Camere: 3
Piano: su più livelli
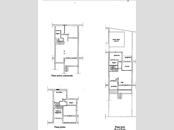
Castelnuovo Magra, loc. Palvotrisia, in zona residenziale ed in comoda posizione, vicina a tutti i servizi, disponiamo di villetta a schiera centrale di ottima fattura, ben tenuta e totalmente arredata. L’immobile dispone di un giardino sul fronte, e di una corte pavimentata con posto auto sul retro, oltre a pergolati, porticati, terrazze e verande, che permettono di vivere l'immobile con comodità anche all'aperto, nella tranquillità e con una vista aperta sino al mare. Si entra da una comoda veranda che ci conduce al soggiorno in doppia altezza, di seguito una sala da pranzo e una cucina abitabile con apertura verso il pergolato e il porticato sul retro, un piccolo disimpegno, ed un bagno con doccia. Tramite comoda scala si accede al piano primo mansardato tutto in parquet, dove troviamo una camera matrimoniale terrazzata con vista sino al mare, un bagno con vasca ed un'ulteriore vano mansardato. Al piano seminterrato, con accesso sia dall'interno della casa che direttamente dall'esterno, troviamo una grande taverna, molto ben tenuta e luminosa (una portone e due porte finestre) un ripostiglio, una lavanderia ed una cantina. L’immobile è disponibile da subito.

Condizioni economiche

Contratto: Vendita
Prezzo: 350'000€
Arredato: si

Informazioni principali

Tipologia: Villetta a schiera
Città: Castelnuovo Magra
Zona: Palvotrisia
Superficie: 147 m²
N° locali: 8
N° bagni: 3
N° Camere: 3
Piano: su più livelli
Posto auto: 1
Giardino: privato
Esposizione: buona

Efficenza energetica

Classe energetica: E
Ipe: 89,00 kwm2
Anno di costruzione: 2006
Ristrutturato: si

Dati inserzione

ID Offrocasa.com: 10529144
Data inserimento: 17/08/2024
Rif. Agenzia: 1280659/1682/23997
Rif. Agenzia 1280659/1682/23997

LUCHESINI ROBERTA

Via Via Provinciale,, 75 - Arcola (La Spezia)
0187918814
Richiedi Info dal form:
Accetto l'Informativa Privacy


LUCHESINI ROBERTA

Via Via Provinciale,, 75 - Arcola (La Spezia)

Villetta a schiera in Vendita a Castelnuovo Magra, zona Palvotrisia, 350'000€, 147 m², arredato

Chiama
Contatta