Casa Indipendente in Vendita a Ospedaletti, 247 m²

Locali: 10+
Camere: 4
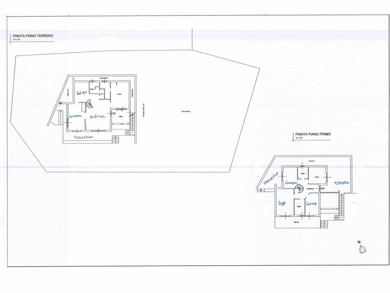
Ospedaletti, fantastica villa su due livelli, già predisposta per essere suddivisa in due appartamentì, metratura totale mq.247 comm.li, al piano terra 119 mq. + mq.15 lavanderia e cantina, al primo piano mq, 113 oltre a una metratura di 193 mq. tra terrazzi e balconi. Pertinenza della villa mq.953 di terreno, giardino e cortile, area parcheggio. La villa gode di una vista super fantastica, attualmente è una bifamiliare, con un apparamento al piano terra composto di ingresso in salone, camera matrimoniale, cucina abitabile con dispensa, salotto, antibagno e bagno, oltre ad una fantastica e fresca tettoia che anticipa il postone d'ingresso, al piano primo troviamo il secondo appartamento composto da ingresso due camere da letto, soggiorno, cucina abitabile nuova, due bagni, una terrazza che guarda tutto il golfo di Ospedaletti e anche più..., area di terrazza perimetrale vivibile per il resto della casa, sempre con una vista a 360° ....fantastica. Parcheggi in area pertinenziale circa 5 posti auto, di cui uno coperto da tettoia, per concludere terreno in corte pertinenziale di circsa 950 mq. con orto e piante. Nota sicuramenti di tutto rilievo il diritto di utilizzare la piscina che si trova sottostante la proprietà e che si raggiunge in un minuto, sempre per poter godere del sole e di un panorama unico. La trattativa è riservata e la villa è tenuta perfettamente, costrutia intorno agli anni 1970, ma ristrutturata di ottime finuture. Trattativa riservata in agenzia.

Condizioni economiche

Contratto: Vendita
Prezzo: Prezzo su richiesta
Arredato: No

Informazioni principali

Tipologia: Casa Indipendente
Città: Ospedaletti
Vicinanze: Semicentrale
Superficie: 247 m²
N° locali: 10+
N° Camere: 4
N° balconi: 1
Posto auto: Si
Giardino: Si

Efficenza energetica

Classe energetica: VA
Anno di costruzione: 1970
Condizioni stabile: Ottimo

Caratteristiche

Cantina: Si

Dati inserzione

ID Offrocasa.com: 10528545
Data inserimento: 13/08/2024
Rif. Agenzia: 001-V-001
Rif. Agenzia 001-V-001

Immobiliare Stefy

V. Roma 109 - Sanremo (Imperia)
0184.841046
Richiedi Info dal form:
Accetto l'Informativa Privacy


Immobiliare Stefy

V. Roma 109 - Sanremo (Imperia)

Casa Indipendente in Vendita a Ospedaletti, 247 m²

Chiama
Contatta