Trilocale in Vendita a Adria, 215'000€, 130 m²

Locali: 3
Bagni: 1
Camere: 2
Piano: 1°
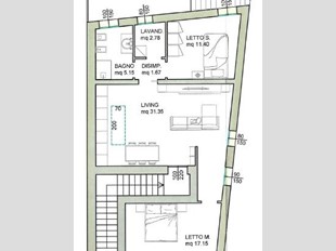
Rif. A4442 - Proponiamo in vendita, in pieno centro storico ad Adria, splendido trilocale di prossima realizzazione perfetto per chi desidera vivere in un ambiente moderno e confortevole. La posizione centralissima comoda a parcheggi, bar, negozi, scuole e altri servizi essenziali, rende la vita quotidiana comoda e piacevole. Con una superficie di 130 mq disposti su 3 livelli, l'appartamento è composto da, al piano terra ingresso indipendente, al piano primo 2 camere da letto, una luminosa zona giorno open space, un bagno con lavanderia e un terrazzo, mentre al secondo ed ultimo piano una terrazza panoramica esclusiva di 75 mq con pergola. L'appartamento, con possibilità di personalizzazione degli interni, verrà dotato di riscaldamento a pavimento, aria condizionata e impianto fotovoltaico, con opportunità di acquisto a parte di garage. Non lasciarti sfuggire questa occasione unica di vivere nel cuore di Adria, contattaci ora per organizzare una visita!

Condizioni economiche

Contratto: Vendita
Prezzo: 215'000€
Libero: Si

Informazioni principali

Tipologia: Trilocale
Città: Adria
Superficie: 130 m²
N° locali: 3
N° bagni: 1
N° Camere: 2
Piano:
Cucina: Abitabile

Efficenza energetica

Classe energetica: 2015-A4
Ipe: 15.00 kwm2
Climatizzatore: Si
Anno di costruzione: 2024
Riscaldamento: autonomo

Dati inserzione

ID Offrocasa.com: 10528239
Data inserimento: 11/08/2024
Rif. Agenzia: A4442VRG
Rif. Agenzia A4442VRG

Gabetti

via Chieppara 32 - Adria (Rovigo)
0426/901385
Richiedi Info dal form:
Accetto l'Informativa Privacy


Condividi

Gabetti

via Chieppara 32 - Adria (Rovigo)

Trilocale in Vendita a Adria, 215'000€, 130 m²

Chiama
Contatta