Villa bifamiliare in Vendita a San Marcellino, zona Via Lazio, 280'000€, 130 m²
        
    
        
    
        
    
    
        Situata in una zona tranquilla, proponiamo una splendida villa in costruzione che rappresenta l'opportunità irripetibile di vivere in un ambiente moderno e all'avanguardia.
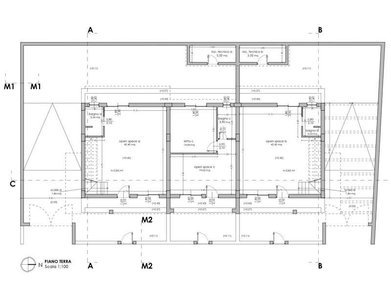
L'immobile è composto da:
tre camere spaziose perfette per tutta la famiglia, due bagni rifiniti con materiali di pregio e una cucina open-space ideale per momenti conviviali e cene con amici e posto auto riservato sempre a tua disposizione.
La villa sarà dotata di impianti fotovoltaici di ultima generazione garantendo un futuro all'insegna della sostenibilità. Con una classe energetica A4, avrai la certezza di un basso impatto ambientale e di un confort abitativo senza eguali.
E' possibile acquistare una parte al prezzo di 280.000€ o entrambe al prezzo di 560.000€.
Visionabile previo appuntamento telefonico contattando i numeri /.
Lo studio di consulenza Due A Vi offre consulenze gratuite per mutui o finanziamenti. Un nostro collaboratore vi aiuterà a trovare la rata fatta su misura per Voi!
	
    
    
    
        
        
            Condizioni economiche
            
                Contratto: Vendita
            
            
                Prezzo: 280'000€
            
            
                
                    Prezzo trattabile: no
                
            
                
                    Arredato: no
                
            
                
                    Libero: si
                
            
         
        
            Informazioni principali
            
                Tipologia: Villa bifamiliare
            
            
                Città: San Marcellino
            
            
                
                    Zona: Via Lazio
                
            
                
                    Superficie: 130 m²
                
            
                
                    N° locali: 4
                
            
                
                    N° bagni: 2
                
            
                
                    N° Camere: 3
                
            
                
                    Piano: 2
                
            
                
                    N° balconi: 4
                
            
                
                    Posto auto: 1
                
            
                
                    Giardino: si, privato
                
            
                
                    Esposizione: Sud-Est
                
            
         
        
            Efficenza energetica
            
                Classe energetica: A+
            
            
                
                    Ipe: 2,00
                
            
                
                    Condizioni stabile: grezzo
                
            
		 
        
                
                    Caratteristiche
                    
                        
                            Cantina: si
                        
                    
                 
            
            
                Dati inserzione
                
                    ID Offrocasa.com: 10522543
                
                
                
                    Data inserimento: 01/08/2024
                
                
                    
                        Rif. Agenzia: Villa in Via Lazio
                    
                
             
        
	 
    
    
        
Villa bifamiliare in Vendita a San Marcellino, zona Via Lazio, 280'000€, 130 m²