Casa Indipendente in Vendita a Cesena, zona Lizzano, 191'427€, 594 m²

Locali: 10
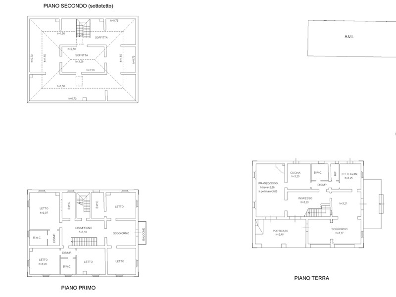
Vendesi in Asta a Lizza di Cesena, Fabbricato monofamiliare edificato sui piani T (portico, ampio ingresso con scala di accesso al P1, soggiorno/pranzo, cucina, disimpegno, wc, ripostiglio, centrale termica,/lavanderia, altro soggiorno), P1 (disimpegni, 5 camere letto, soggiorno con balcone, 4 bagni) e P2 (sottotetto soffitta raggiungibile da scala interna) oltre a due corpi staccati di fabbricati destinati uno a deposito al PT e l'altro ad autorimessa al PT e deposito al piano Int-T, oltre a corte pertinenziale. Per Info ed appuntamenti: 800129769 oppure 3519120169. Possibilità di Mutuo prima casa al 100% in 20 anni. www.alquadrato.net - Servizio Aste.

Condizioni economiche

Contratto: Vendita
Prezzo: 191'427€
Arredato: No

Informazioni principali

Tipologia: Casa Indipendente
Città: Cesena
Zona: Lizzano
Superficie: 594 m²
N° locali: 10

Efficenza energetica

Classe energetica: VA
Anno di costruzione: 0
Condizioni stabile: Buono

Dati inserzione

ID Offrocasa.com: 10515143
Data inserimento: 21/07/2024
Rif. Agenzia: 2462
Rif. Agenzia 2462

Consulenti Immobiliari Associati Srl

V.le Guglielmo Oberdan 444 - Cesena (FC)
334.7771349
Richiedi Info dal form:
Accetto l'Informativa Privacy


Consulenti Immobiliari Associati Srl

V.le Guglielmo Oberdan 444 - Cesena (FC)

Casa Indipendente in Vendita a Cesena, zona Lizzano, 191'427€, 594 m²

Chiama
Contatta