Casale in Vendita a Poggibonsi, 120'000€, 165 m²

Locali: 4
Bagni: 2
Camere: 3
Piano: Piano Terra
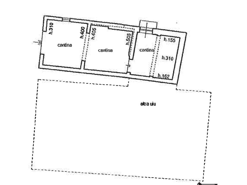
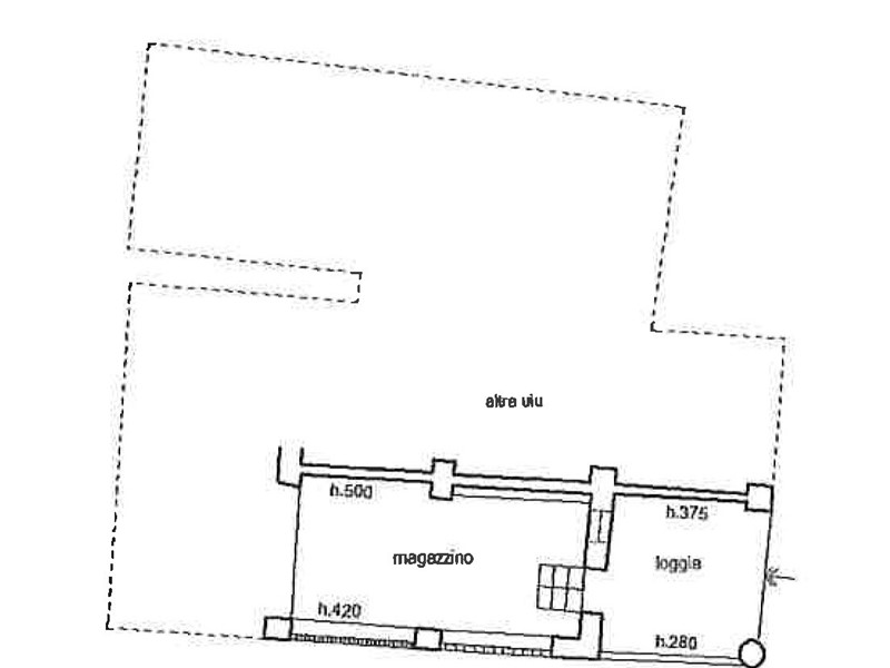
Vendesi nel Comune di Poggibonsi (SI), in zona di campagna a 5 minuti dall'abitato, CAPANNA da ristrutturare posto al piano terra di mq 165 con resede esclusivo. \nIl rudere può essere trasformato in abitazione con una ristrutturazione totale.\nAdiacente all'immobile vi è un giardino di mq 50 e staccato dal rudere ci sono ulteriori mq 500 circa di giardino.\nClasse energetica in lavorazione.\n\nLa nostra agenzia è strutturata per fornirvi, gratuitamente, assistenza per la richiesta di mutuo, notaio, tecnici e quanto necessario tramite gli istituti bancari ed i professionisti che collaborano con noi.\nwww.immobiliarecelardo.it\n

Condizioni economiche

Contratto: Vendita
Prezzo: 120'000€

Informazioni principali

Tipologia: Casale
Città: Poggibonsi
Superficie: 165 m²
N° locali: 4
N° bagni: 2
N° Camere: 3
Piano: Piano Terra
Giardino: Privato

Efficenza energetica

Classe energetica: N.D.
Ristrutturato: Da Ristrutturare

Dati inserzione

ID Offrocasa.com: 10512404
Data inserimento: 18/07/2024
Rif. Agenzia: SHP-2006
Rif. Agenzia SHP-2006

Immobiliare Celardo

Piazza Spartaco Lavagnini, 1r - Colle di Val D'Elsa (Siena)
3280568195
Richiedi Info dal form:
Accetto l'Informativa Privacy


Immobiliare Celardo

Piazza Spartaco Lavagnini, 1r - Colle di Val D'Elsa (Siena)

Casale in Vendita a Poggibonsi, 120'000€, 165 m²

Chiama
Contatta