Ufficio in Affitto a Cascina, 1'100€, 129 m²

Locali: 4
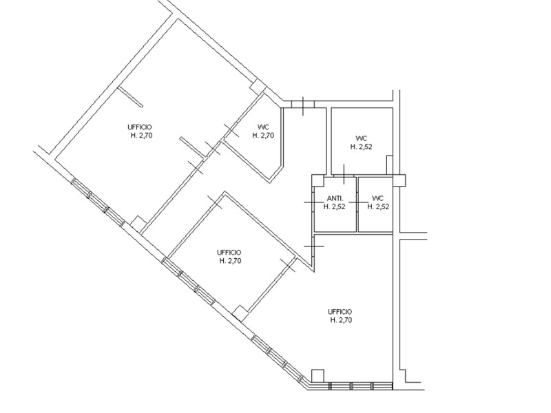
UFFICIO IN AFFITO A CASCINA (PI) Nel nuovo centro commerciale e direzionale vicino uscita FI-PI-LI abbiamo selezionato uno splendido ufficio in locazione. Al piano primo, circa 129 mq con ingresso - saletta di attesa, doppi servizi, stanza spogliatoio o archivio, uffici separati da pareti in muratura come da planimetria. Arredato con mobili nuovi, dotato di ogni confort, cablato con impianti e climatizzato. Condizioni perfette pari al nuovo. Ottimo per ufficio o studio professionale. Richiesta serietà e referenze. Classe energetica: C - Rif. 1054A

Condizioni economiche

Contratto: Affitto
Prezzo: 1'100€
Prezzo trattabile: si

Informazioni principali

Tipologia: Ufficio
Città: Cascina
Superficie: 129 m²
N° locali: 4

Efficenza energetica

Classe energetica: C
Ipe: 183,00 kwm2
Ristrutturato: si

Dati inserzione

ID Offrocasa.com: 10511552
Data inserimento: 17/07/2024
Rif. Agenzia: 1277781/282/1054A
Rif. Agenzia 1277781/282/1054A

NENCIONI Immobiliare

Via Via Papa Giovanni XXIII,, 17 - Calcinaia (Pisa)
0587488136
Richiedi Info dal form:
Accetto l'Informativa Privacy


NENCIONI Immobiliare

Via Via Papa Giovanni XXIII,, 17 - Calcinaia (Pisa)

Ufficio in Affitto a Cascina, 1'100€, 129 m²

Chiama
Contatta