Attico in Vendita a Bari, 205'000€, 130 m²

Locali: 5
Bagni: 2
Camere: 2
Piano: 6°
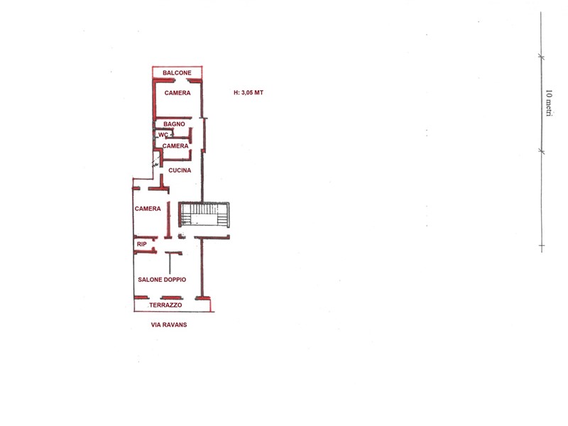
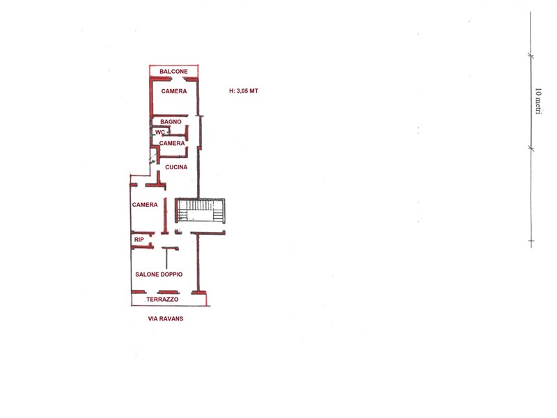
In Via Ravanas all'altezza di Via Crisanzio, a due passi dall'area dell'ex manifattura dei Tabacchi, un attico molto arioso e comodo (mq. 130 ca.) con piacevole terrazzino (mq. 15 ca.). In uno stabile signorile e ben abitato, a due passi dall'università, dalla Stazione Centrale, nella zona libertà, lì dove sono in fase di realizzazione la nuova caserma dei carabinieri e la nuova sede del C.N.R. (Consiglio Nazionale delle Ricerche). L'attico ha 2 ingressi: il primo posto è posto nel salone doppio, affacciato sul terrazzo, e diviso in sala pranzo e salotto; questo grande ambiente è facilmente divisibile. Il secondo ingresso ci introduce nella restante parte dell'appartamento, ben disimpegnata. La cucina abitabile ha al suo servizio la veranda ed è affacciata all'interno. Anche le 3 camere da letto, di cui la più piccola ha il proprio bagno, sono molto silenziose ed affacciate all'interno; il bagno padronale con finestra è funzionale; i 2 ripostigli e gli ammezzati completano le comodità dell'appartamento. L'attico ha entrambe le porte blindate; il riscaldamento è autonomo ed è fornito di climatizzatori in alcuni ambienti; le tapparelle sono blindate; c'è la predisposizione per l'impianto d'allarme. L'appartamento è molto luminoso, comodo, silenzioso, si presta anche ad una nuova ridistribuzione degli spazi e rappresenta una soluzione molto interessante. Per maggiori informazioni e per visitare l'immobile contattaci: Gabetti Franchising Centro, Madonnella e Garibaldi - Luciana Lorusso Immobiliare, Tel. 080.5216726 e 342.1411856 Siamo a disposizione per una consulenza gratuita presso i nostri uffici a Bari in Via Calefati 142 in angolo con Via marchese di Montrone. Le foto denominate Home Staging, rappresentano un'ipotesi di ristrutturazione frutto dell'intelligenza artificiale. Sono quindi meramente indicative e non rispecchiano perfettamente lo stato dei luoghi.

Condizioni economiche

Contratto: Vendita
Prezzo: 205'000€
Arredato: No

Informazioni principali

Tipologia: Attico
Città: Bari
Superficie: 130 m²
N° locali: 5
N° bagni: 2
N° Camere: 2
Piano:
Cucina: Abitabile

Efficenza energetica

Classe energetica: 2015-D
Ipe: 107.30 kwm2
Climatizzatore: Si
Anno di costruzione: 1954
Riscaldamento: autonomo

Caratteristiche

Ascensore: Si

Dati inserzione

ID Offrocasa.com: 10510890
Data inserimento: 16/07/2024
Rif. Agenzia: Cod. rif 3165922VRG
Rif. Agenzia Cod. rif 3165922VRG

Gabetti

Via Calefati, 142 ang. Via Marchese di Montrone - - Bari
080/5216726
Richiedi Info dal form:
Accetto l'Informativa Privacy


Gabetti

Via Calefati, 142 ang. Via Marchese di Montrone - - Bari

Attico in Vendita a Bari, 205'000€, 130 m²

Chiama
Contatta