Appartamento in Vendita a Cecina, 375'000€, 106 m², con Box
        
    
        
    
        
    
    
        Cecina: NUOVA SUL MERCATO, Vi proponiamo interessante soluzioni di BIFAMILIARE di 106 mq, con disponibilità al PIANO TERRENO o PIANO PRIMO, in totale Indipendenza, con Ampio GIARDINO. 
Al piano terreno abbiamo l'accesso dal Porticato,  zona giorno con soggiorno (con possibilità di ampliamento), cucina pranzabile con uscita sul giardino, disimpegno, 3 camere (matrimoniale + 2 singole) e doppi servizi + garage, oltre al giardino di 160 mq sviluppato su 3 lati. 
 
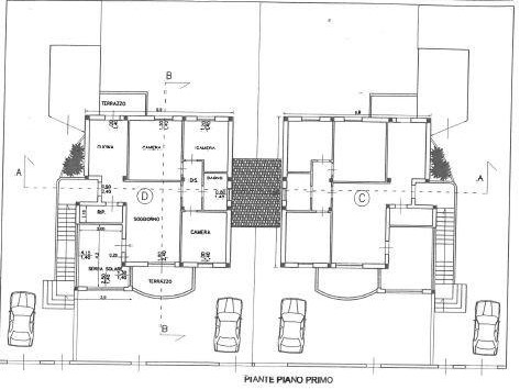
Il piano primo ha accesso da scala esterna,  ingresso in soggiorno dove è presente anche la serra solare e la terrazza, cucina pranzo con terrazza, disimpegno, 3 camere e 2 bagni. Al piano terra abbiamo il giardino di 110 mq e il garage di 16 mq. 
Il fabbricato avrà tutti i requisiti di ultima generazione, per ottenere la Certificazione in Classe A4. 
SOLUZIONE INTERESSANTE DA VALUTARE CON ATTENZIONE.
E' ubicato in ottima posizione del paese, comoda per gli spostamenti cittadini di adulti e figli e per gli spostamenti verso la viabilità extraurbana.
Per tutti i dettagli, per visite in loco e per visionare il materiale, siamo a Vostra disposizione.  
Classe energetica: A4 - Rif. 50
	
    
    
    
        
        
            Condizioni economiche
            
                Contratto: Vendita
            
            
                Prezzo: 375'000€
            
            
         
        
            Informazioni principali
            
                Tipologia: Appartamento
            
            
                Città: Cecina
            
            
                
                    Superficie: 106 m²
                
            
                
                    N° locali: 5
                
            
                
                    N° bagni: 2
                
            
                
                    N° Camere: 3
                
            
                
                    Piano: piano terra
                
            
                
                    Box: si
                
            
                
                    Posto auto: 2
                
            
                
                    Giardino: privato
                
            
         
        
            Efficenza energetica
            
                Classe energetica: A4
            
            
                
                    Anno di costruzione: 2025
                
            
		 
        
            
                Dati inserzione
                
                    ID Offrocasa.com: 10488645
                
                
                
                    Data inserimento: 17/06/2024
                
                
                    
                        Rif. Agenzia: 1273014/216/50
                    
                
             
        
	 
    
    
        
Appartamento in Vendita a Cecina, 375'000€, 106 m², con Box