Quadrilocale in Vendita a Cecina, 290'000€, 67 m², con Box
        
    
        
    
        
    
    
        Cecina: nella periferia del paese, vendesi soluzione al piano terra in Bifamiliare.  
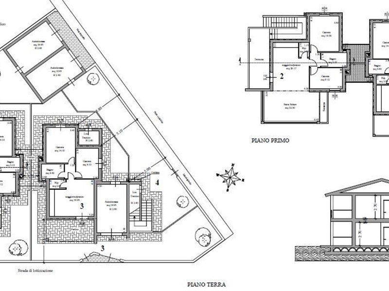
Al piano Terreno, Trilocale di 67 mq,  composto da soggiorno con angolo cottura, Portico di 14 mq, ripostiglio, disimpegno, bagno, camera matrimoniale, camera singola, locale tecnico, giardino di 120 mq, garage di 25 mq. Prezzo € 290.000
Il fabbricato verrà realizzato con Ottimo capitolato, con materiali di ultima generazione a livelli di tamponamenti, infissi, impianti, con presenza di fotovoltaico, riscaldamento a pavimento,  caratteristiche che permetteranno di raggiungere i massimi livelli di prestazione energetica.
Classe energetica prevista A4.  Rif. 78
	
    
    
    
        
        
            Condizioni economiche
            
                Contratto: Vendita
            
            
                Prezzo: 290'000€
            
            
         
        
            Informazioni principali
            
                Tipologia: Quadrilocale
            
            
                Città: Cecina
            
            
                
                    Superficie: 67 m²
                
            
                
                    N° locali: 4
                
            
                
                    N° bagni: 1
                
            
                
                    N° Camere: 2
                
            
                
                    Piano: piano terra
                
            
                
                    Box: si
                
            
                
                    Posto auto: 1
                
            
                
                    Giardino: privato
                
            
         
        
            Efficenza energetica
            
                Classe energetica: A4
            
            
		 
        
            
                Dati inserzione
                
                    ID Offrocasa.com: 10488631
                
                
                
                    Data inserimento: 17/06/2024
                
                
                    
                        Rif. Agenzia: 1272989/216/78
                    
                
             
        
	 
    
    
        
Quadrilocale in Vendita a Cecina, 290'000€, 67 m², con Box