Quadrilocale in Vendita a San Filippo del Mela, 55'000€, 138 m²

Locali: 4
Bagni: 2
Camere: 3
Piano: 1°
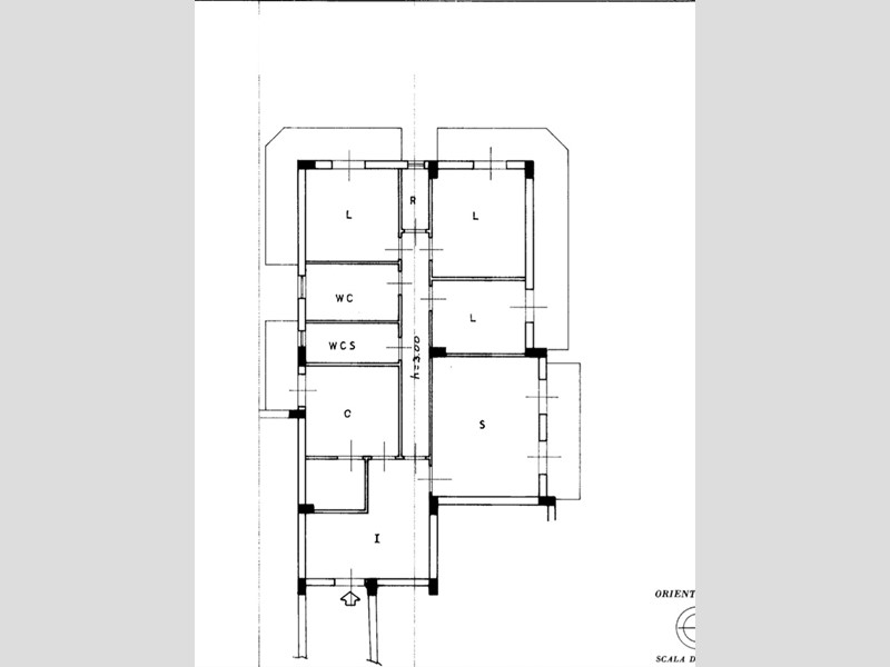
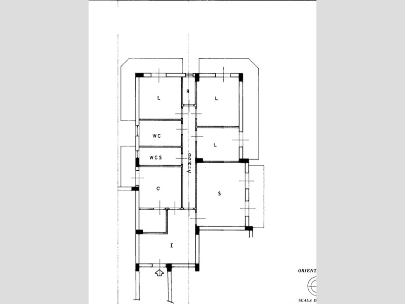
#prof252 Corso Palmiro Togliatti snc - Cattafi fraz. San Filippo del Mela (ME) Se stai cercando un appartamento spazioso e da personalizzare secondo i tuoi gusti, questa è l'opportunità che fa per te! Situato al primo piano in una zona tranquilla di Cattafi, in Corso Palmiro Togliatti, questo quadrilocale da rammodernare offre un'ampia metratura di circa 138 mq: cucina abitabile con ripostiglio, ideale per chi ama cucinare e ha bisogno di spazio per la dispensa; soggiorno ampio e luminoso, perfetto per momenti di relax e convivialità. Camera da letto matrimoniale ampia e luminosa, con spazio sufficiente per armadi e arredamento e ulteriori due camerette. Due bagni funzionali e pronti per essere rinnovati secondo le tue esigenze e un ulteriore ripostiglio per organizzare al meglio la tua casa. I quattro balconi offrono l'opportunità di godere di momenti di relax all'aria aperta. L'appartamento, grazie ai suoi ampi spazi e alla buona esposizione, è molto luminoso e offre infinite possibilità di ristrutturazione per creare la casa dei tuoi sogni. Non perdere questa occasione di investimento! Per maggiori informazioni e per prenotare una visita, contattaci subito: un consulente dedicato sarà a tua disposizione! Vieni a trovarci presso la nostra agenzia in Via Marina Garibaldi, 61 - Milazzo (ME) Tel. & Whatsapp: 0909031774

Condizioni economiche

Contratto: Vendita
Prezzo: 55'000€
Libero: Si

Informazioni principali

Tipologia: Quadrilocale
Città: San Filippo del Mela
Superficie: 138 m²
N° locali: 4
N° bagni: 2
N° Camere: 3
Piano:
Cucina: Abitabile

Efficenza energetica

Classe energetica:
Anno di costruzione: 1971
Riscaldamento: autonomo

Dati inserzione

ID Offrocasa.com: 10485564
Data inserimento: 13/06/2024
Rif. Agenzia: #prof252VRG
Rif. Agenzia #prof252VRG

Professionecasa

Prossima Apertura - Milazzo (Messina)
0909031774
Richiedi Info dal form:
Accetto l'Informativa Privacy


Condividi

Professionecasa

Prossima Apertura - Milazzo (Messina)

Quadrilocale in Vendita a San Filippo del Mela, 55'000€, 138 m²

Chiama
Contatta