Negozio in Vendita a Aprilia, 450'000€, 300 m²

Locali: 2
Bagni: 3
Piano: Terra
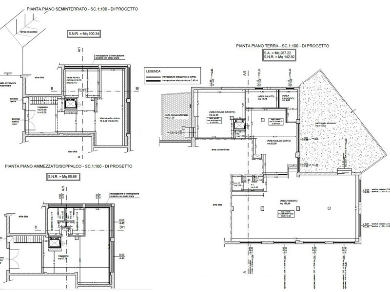
Proponiamo in vendita un ampio negozio ad uso commerciale situato in via Giuseppe Verdi, con corte privata di 115 mq. Al piano terra con una superficie di 300 mq ci accoglie un ampia sala dove ricevere la clientela, 2 bagni e un bagno disabili con antibagno; a seguire troviamo la cucina suddivisa in zone tra cui area lavoro, area cottura, area lavaggio, così con la possibilità di sfruttare al meglio lo spazio disponibile. La cucina dispone anche di un accesso ad una corte esclusiva di 27mq. Il piano terra e il seminterrato sono collegati con ascensore. Il seminterrato con una superficie di 85 mq, dispone di due accessi sia per il personale che per lo scarico merci dallo spazio di manovra condominiale con ingresso dalla rampa da Via Leonardo da Vinci; Il locale seminterrato dispone di un soppalco calpestabile di 50 mq circa. La struttura è dotata di predisposizione per impianto di climatizzazione, garantendo comfort e benessere ai futuri occupanti. L'interno della sala al piano terra è stato ristrutturato garantendo un ambiente moderno e accogliente, mentre il retro e il seminterrato si presenta da ultimare. La posizione strategica, rende questo negozio ideale per attività commerciali di vario genere. L'immobile è libero e pronto per essere personalizzato secondo le esigenze del nuovo proprietario. Contattaci per organizzare una visita e scoprire tutte le potenzialità di questo spazio unico.

Condizioni economiche

Contratto: Vendita
Prezzo: 450'000€
Arredato: No
Libero: Si

Informazioni principali

Tipologia: Negozio
Città: Aprilia
Superficie: 300 m²
N° locali: 2
N° bagni: 3
Piano: Terra

Efficenza energetica

Classe energetica: 2015-D
Ipe: 390.46 kwm2
Anno di costruzione: 1968

Dati inserzione

ID Offrocasa.com: 10481841
Data inserimento: 08/06/2024
Rif. Agenzia: Cod. rif 3149735VCG
Rif. Agenzia Cod. rif 3149735VCG

Grimaldi Immobiliare

Via Goito 19 - Aprilia (Latina)
069276288
Richiedi Info dal form:
Accetto l'Informativa Privacy


Grimaldi Immobiliare

Via Goito 19 - Aprilia (Latina)

Negozio in Vendita a Aprilia, 450'000€, 300 m²

Chiama
Contatta