Negozio in Vendita a Partinico, 370'000€, 467 m²

Locali: 10+
Bagni: 1
Piano: Terra
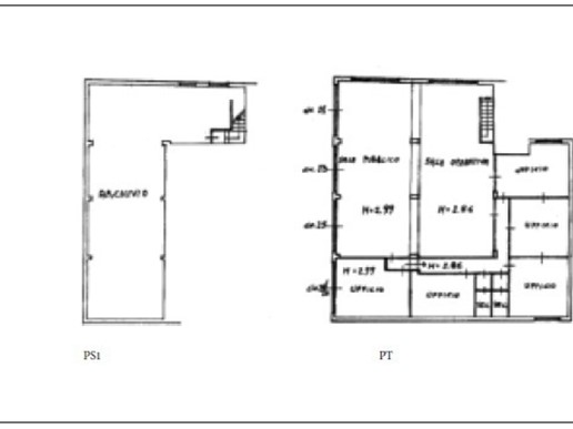
In Viale della Regione a Partinico, in una zona prevalentemente residenziale, proponiamo in vendita un locale con destinazione uso ufficio di 476 mq. Nelle immediate vicinanze sono presenti diverse tipologie di attività commerciali, uffici e aree verdi pubbliche, oltre parcheggi. Da un punto di vista infrastrutturale e dei trasporti, si segnala che Viale della Regione costituisce una delle principali arterie stradali d'interesse locale che collega Partinico ai vicini centri urbani. L'unità risulta ricadere in una palazzina composta da 3 piani fuori terra con destinazione residenziale, destinazione commerciale al piano terra e magazzini al piano cantinato. L'immobile risulta così composto: all'ingresso una sala pubblico con retrostante sala operativa, due uffici che delimitano la sala pubblico, sul retro, serviti da un disimpegno, uffici e servizi igienici; attraverso una scala interna si accede al piano cantinato, un unico vano pilastrato destinato ad archivio. I serramenti sono in alluminio e vetro camera mentre la pavimentazione è in marmo. La suddivisione interna degli spazi è ottenuta con pareti con struttura in legno e pannelli vetrati. Dal punto di vista impiantistico si segnala la presenza di impianto di riscaldamento e condizionamento; l'acqua calda sanitaria è prodotta da scaldabagni elettrici e sono presenti le usuali dotazioni di impianto elettrico, d'illuminazione ed idrico/sanitario. Per maggiori info contattare Gabetti Libertà - Corporate Sicilia, Via Cavour, 53/D - Tel. 0919294008/ 0915641494 - mail: palermocorporate@gabetti.it

Condizioni economiche

Contratto: Vendita
Prezzo: 370'000€
Arredato: No
Libero: Si

Informazioni principali

Tipologia: Negozio
Città: Partinico
Superficie: 467 m²
N° locali: 10+
N° bagni: 1
Piano: Terra

Efficenza energetica

Classe energetica: 2015-G
Ipe: 142.00 kwm2
Climatizzatore: Si
Anno di costruzione: 0
Riscaldamento: centralizzato

Dati inserzione

ID Offrocasa.com: 10472147
Data inserimento: 31/05/2024
Rif. Agenzia: COR59VCG
Rif. Agenzia COR59VCG

Gabetti

Via Camillo Cavour 53/D - Palermo
0919294008
Richiedi Info dal form:
Accetto l'Informativa Privacy


Gabetti

Via Camillo Cavour 53/D - Palermo

Negozio in Vendita a Partinico, 370'000€, 467 m²

Chiama
Contatta