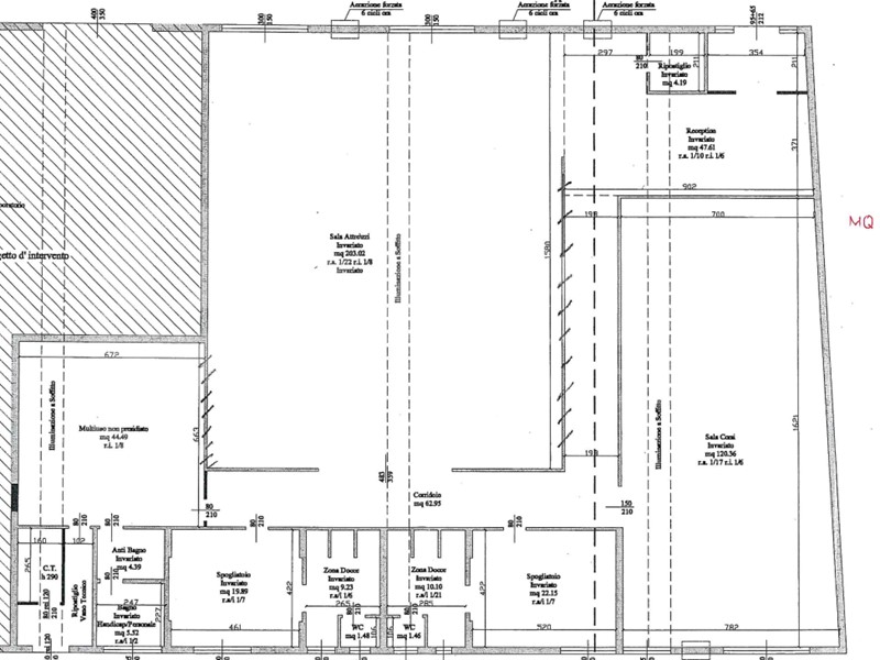
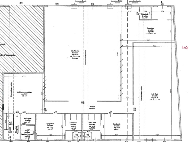
Capannone in Vendita a Bovolone, 340'000€, 600 m²

Locali: 5
Bagni: 3
Piano: Terra
Agenzia immobiliare Gabetti Verona centro propone in vendita, a Bovolone, capannone completamente ristrutturato nel 2016, attualmente adibito a palestra, ottimamente avviata, contratto di affitto intestato a società di Milano con scadenza dicembre 2035. Euro 340000.

Condizioni economiche

Contratto: Vendita
Prezzo: 340'000€

Informazioni principali

Tipologia: Capannone
Città: Bovolone
Superficie: 600 m²
N° locali: 5
N° bagni: 3
Piano: Terra

Efficenza energetica

Classe energetica: 2015-E
Ipe: 0.01 kwm2
Anno di costruzione: 0

Dati inserzione

ID Offrocasa.com: 10456581
Data inserimento: 14/05/2024
Rif. Agenzia: Cod. rif 3150589VCG
Rif. Agenzia Cod. rif 3150589VCG

Gabetti

corso di Porta Nuova 79/83 - Verona
045/8032023
Richiedi Info dal form:
Accetto l'Informativa Privacy


Gabetti

corso di Porta Nuova 79/83 - Verona

Capannone in Vendita a Bovolone, 340'000€, 600 m²

Chiama
Contatta