Appartamento in Vendita a Capannori, zona Lunata, 275'000€, 141 m²

Locali: 6
Bagni: 2
Camere: 3
Piano: 1°
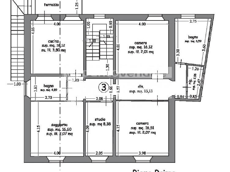
RIF. 9244 - LUMINOSO APPARTAMENTO IN FASE DI RISTRUTTURAZIONE A LUNATA - In piccolo condominio di sole quattro unità in fase di totale ristrutturazione vendesi appartamento di circa 140mq posto al piano primo con ingresso indipendente e ampio ripostiglio esterno di 13 mq. L'appartamento si compone di ingresso in cucina abitabile con terrazzo, soggiorno, due bagni finestrati, due camera matrimoniale, studio e ripostiglio. L'immobile sarà dotato di finiture di alto livello, con soffitti con travi e travicelli, infissi in PVC con vetrocamera, portoncino blindato, impianto TV satellitare. La zona condominiale dove si trovano i parcheggi delle unità abitative saranno totalmente recintati e l'ingresso avverrà tramite due cancelli, pedonale e carrabile.

Condizioni economiche

Contratto: Vendita
Prezzo: 275'000€

Informazioni principali

Tipologia: Appartamento
Città: Capannori
Zona: Lunata
Superficie: 141 m²
N° locali: 6
N° bagni: 2
N° Camere: 3
Piano:
Posto auto: 2

Efficenza energetica

Classe energetica: In attesa di certificazione

Caratteristiche

Cantina: si
Videocitofono: si

Dati inserzione

ID Offrocasa.com: 10454529
Data inserimento: 11/05/2024
Rif. Agenzia: 1266726/1476/9246
Rif. Agenzia 1266726/1476/9246

Puntoaffitto Specialisti in Locazioni

Via Via Fillungo,, 212 - Lucca
0583462425
Richiedi Info dal form:
Accetto l'Informativa Privacy


Condividi

Puntoaffitto Specialisti in Locazioni

Via Via Fillungo,, 212 - Lucca

Appartamento in Vendita a Capannori, zona Lunata, 275'000€, 141 m²

Chiama
Contatta