Terreno industriale in Vendita a Catania, 400'000€, 6000 m²

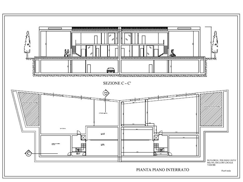
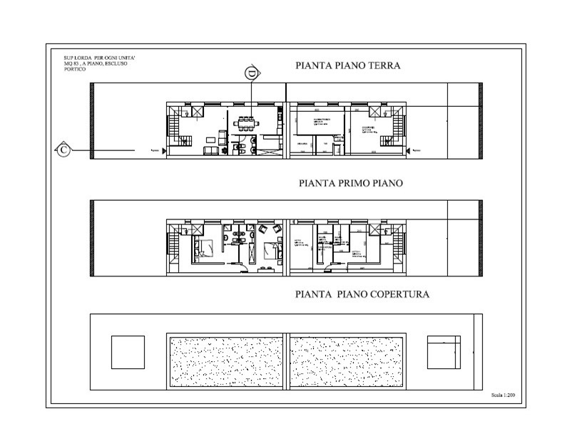
Catania posizionato a ridosso della circonvallazione, in zona collinare panoramica vista mare, proponiamo in vendita terreno edificabile di 6000 mq con progetto approvato per 2 ville accorparte dal desing moderno di ultima generazione con piscina, composte da 2 livelli per un totale di 130 mq cad. una, più cantinato di 170 mq cad. una. Possibilità di variante del progetto per la realizzazione di 3 ville singole. € 400.000

Condizioni economiche

Contratto: Vendita
Prezzo: 400'000€
Arredato: No

Informazioni principali

Tipologia: Terreno industriale
Città: Catania
Superficie: 6000 m²

Efficenza energetica

Classe energetica: NA
Anno di costruzione: 0
Condizioni stabile: Ottimo

Dati inserzione

ID Offrocasa.com: 10451355
Data inserimento: 08/05/2024
Rif. Agenzia: 79/T
Rif. Agenzia 79/T

Incipitcasa

Via Delle Scuole 7 - Tremestieri Etneo (CT)
095.7512788
Richiedi Info dal form:
Accetto l'Informativa Privacy


Incipitcasa

Via Delle Scuole 7 - Tremestieri Etneo (CT)

Terreno industriale in Vendita a Catania, 400'000€, 6000 m²

Chiama
Contatta