Appartamento in Vendita a San Miniato, zona Ponte a Egola, 115'000€, 150 m², arredato

Locali: 5
Bagni: 2
Camere: 3
Piano: 2°
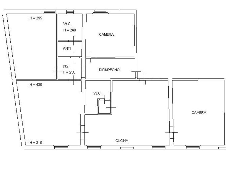
Rif. 905 - Ponte A Egola - San Miniato - Appartamento ampio e ristrutturato in stile rustico posto al piano secondo in edificio storico, composto da 3 camere da letto, ampio soggiorno, cucina abitabile, doppi servizi. Divisibile in due unità, attualmente affittato fino a novembre 2025. Buona occasione anche per investimento.

Condizioni economiche

Contratto: Vendita
Prezzo: 115'000€
Prezzo trattabile: si
Arredato: si

Informazioni principali

Tipologia: Appartamento
Città: San Miniato
Zona: Ponte a Egola
Superficie: 150 m²
N° locali: 5
N° bagni: 2
N° Camere: 3
Piano:

Efficenza energetica

Classe energetica: G
Ipe: 259,00 kwm2
Ristrutturato: si

Dati inserzione

ID Offrocasa.com: 10450783
Data inserimento: 08/05/2024
Rif. Agenzia: 1265915/544/905
Rif. Agenzia 1265915/544/905

ABITARE Agenzia Immobiliare

Via Via Cesare Battisti,, 68 - Fucecchio (Firenze)
057120158
Richiedi Info dal form:
Accetto l'Informativa Privacy


Condividi

ABITARE Agenzia Immobiliare

Via Via Cesare Battisti,, 68 - Fucecchio (Firenze)

Appartamento in Vendita a San Miniato, zona Ponte a Egola, 115'000€, 150 m², arredato

Chiama
Contatta