Immobile commerciale in Vendita a Castel di Lama, 180'000€, 770 m²

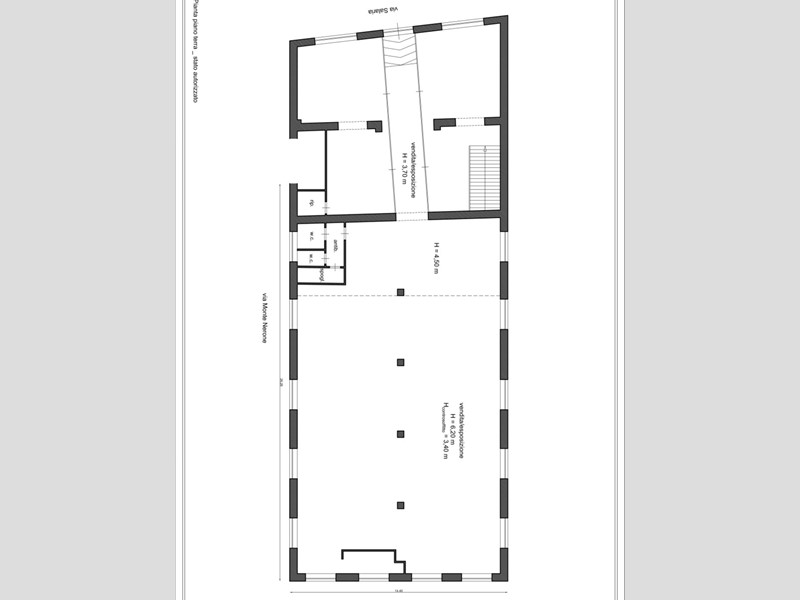
CASTEL DI LAMA - In zona centrale lungo la SS Salaria (VILLA S. Antonio) l'agenzia Centro Servizi immobiliari propone in vendita ampio locale commerciale posto al piano terra e al piano seminterrato L'immobile si presenta in ottime condizioni, è dotato di tre vetrine fronte strada, servizi, ripostiglio e spogliatoio , il piano terra si sviluppa su una superficie di 600 mq e il piano sottostrada ha una superficie di 340 mq circa. La richiesta per l'intero immobile è di € 220.000.

Condizioni economiche

Contratto: Vendita
Prezzo: 180'000€
Arredato: No

Informazioni principali

Tipologia: Immobile commerciale
Città: Castel di Lama
Vicinanze: Centrale
Superficie: 770 m²

Efficenza energetica

Classe energetica: VA
Anno di costruzione: 0
Condizioni stabile: Ottimo

Dati inserzione

ID Offrocasa.com: 10447705
Data inserimento: 03/05/2024
Rif. Agenzia: 2350
Rif. Agenzia 2350

Centro Servizi Immobiliari

Via F.Turati, 70 - San Benedetto del Tronto (AP)
392.9812597
Richiedi Info dal form:
Accetto l'Informativa Privacy


Centro Servizi Immobiliari

Via F.Turati, 70 - San Benedetto del Tronto (AP)

Immobile commerciale in Vendita a Castel di Lama, 180'000€, 770 m²

Chiama
Contatta