Casale in Vendita a Rosignano Marittimo, zona Vada, 490'000€, 900 m²
        
    
        
    
        
    
    
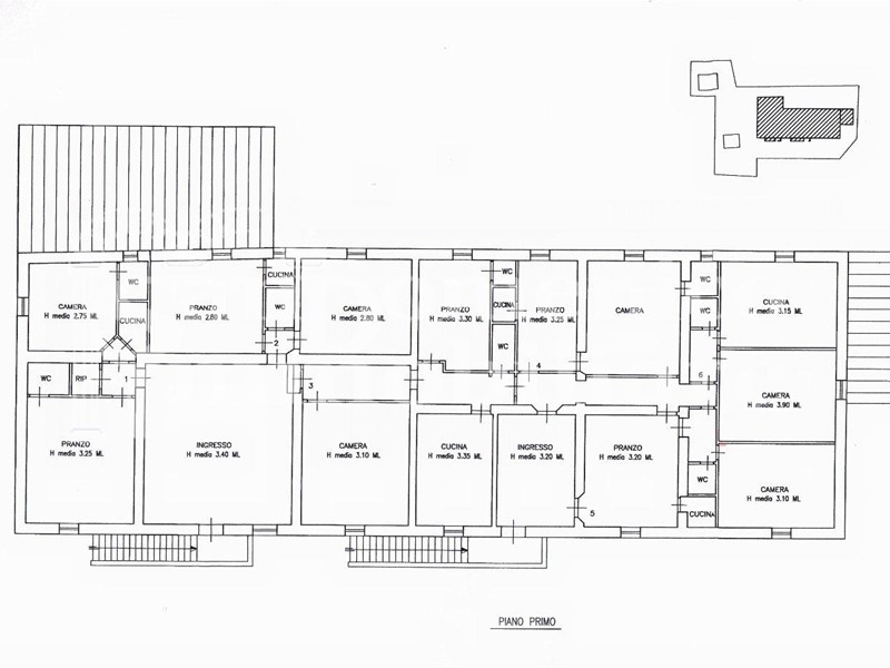
        In posizione ottimale Casolare di circa 900 mq. disposto su due piani fuori terra con un ettaro di terreno agricolo . L'immobile in classico stile toscano necessita di completa ristrutturazione con possibilità di frazionamento in più unità abitative complete di giardino privato. Disponibili ulteriori 20 ettari di terreno agricolo.
	
    
    
    
        
        
            Condizioni economiche
            
                Contratto: Vendita
            
            
                Prezzo: 490'000€
            
            
                
                    Prezzo trattabile: si
                
            
         
        
            Informazioni principali
            
                Tipologia: Casale
            
            
                Città: Rosignano Marittimo
            
            
                
                    Zona: Vada
                
            
                
                    Superficie: 900 m²
                
            
                
                    N° locali: 10+
                
            
                
                    N° bagni: 4
                
            
                
                    N° Camere: 10
                
            
                
                    Piano: su più livelli
                
            
                
                    Esposizione: Soleggiata
                
            
         
        
            Efficenza energetica
            
                Classe energetica: G
            
            
                
                    Ipe: 160,00 kwm2
                
            
                
                    Anno di costruzione: 1930
                
            
                
                    Ristrutturato: no
                
            
		 
        
            
                Dati inserzione
                
                    ID Offrocasa.com: 10446904
                
                
                
                    Data inserimento: 03/05/2024
                
                
                    
                        Rif. Agenzia: 1260864/1737/sd5162v
                    
                
             
        
	 
    
    
        
Casale in Vendita a Rosignano Marittimo, zona Vada, 490'000€, 900 m²